
Rudolf Hamann Immobilien
Herr Rudolf Hamann
+49 ···
Nr. anzeigenPreise & Kosten
Provision für Käufer
10.187,00 inkl. MwSt.
Lage
Die Oberlößnitz zählt zu den absoluten Spitzenlagen in Radebeul. Im näheren Umfeld befinden sich zahlreiche Weingüter, die Umgebung ist geprägt von schönen Villen und zahlreichen Fachwerkhäusern. Das Weingut Hoflößnitz kann in wenigen Gehminuten erreicht werden. Zum Zentrum Radebeul-Ost sind es ca. 8 Gehminuten. Sehr...
Die Wohnung
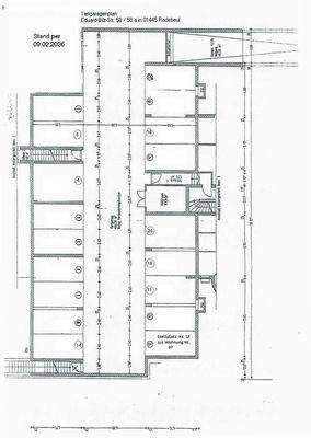
Wohnungslage
3. Geschoss (Dachgeschoss)
Bezug
01.07.2026
Wohnanlage
Energie & Heizung
Warum sehe ich diese Anzeige? – Du siehst diese Anzeige basierend auf Ihrer Navigation auf unserer Website und den Suchkriterien, die du verwendet hast.
Energieausweistyp
Verbrauchsausweis
Gebäudetyp
Wohngebäude
Baujahr laut Energieausweis
1996
Wesentliche Energieträger
Gas
Gültigkeit
21.08.2018 bis 20.08.2028
Effizienzklasse
C
Endenergieverbrauch
85,00 kWh/(m²·a)
Weitere Energiedaten
Energieträger
Gas
Heizungsart
Fußbodenheizung
Details
Ausstattung
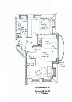
Sehr helle Dachgeschoßwohnung mit großem Wohnzimmer, offener Küche mit Einbauküche, Bad mit Dusche, Fußbodenheizung in der gesamten Wohnung, Stiltüren, Fliesen in Wohnzimmer, Küche, Diele und Bad, Laminatfußboden im Schlafzimmer. Zur Wohnung gehört ein Tiefgaragenplatz, ein Kellerabteil und ein ca. 31 m² großer Hobbyraum im...
Preisinformation
Im Kaufpreis in Höhe von Euro 214.000,00 ist neben der Zwei-Zimmer-Wohnung ein Hobbykeller mit ca. 31 m² in sehr guter Ausstattung sowie der Einzelstellplatz in der Tiefgarage enthalten. Sie erwerben mit dem Kauf der Wohnung - zusammen mit dem Hobbykeller - eine Fläche von insgesamt 94,55 m²., 1 Tiefgaragenstellplatz
Weitere Informationen
Stichworte
Tiefgarage vorhanden, Ost-Balkon/Terrasse, vermietbare Fläche: 62,92 m², Anzahl der Schlafzimmer: 1, Anzahl der Badezimmer: 1, Anzahl Balkone und Terrassen: 1, Bundesland: Sachsen, Wohnungsnr.: 7, Lage im Wohngebiet, Distanz zur Autobahn: 4.00000, Distanz zum Bus: 0.30000, Distanz zur Grundschule: 0.50000...
Anbieter der Immobilie
Online-ID: 2pch853
Referenznummer: EBS 58 WE 07
Finde Angebote wie dieses
Hier geht es zu unserem Impressum, den Allgemeinen Geschäftsbedingungen, den Hinweisen zum Datenschutz und nutzungsbasierter Online-Werbung.