
allkauf haus GmbH
Herr Markus Stang
+49 ···
Nr. anzeigenPreise & Kosten
Provision für Käufer
In Einzelfällen kann eine ortsübliche Maklerprovision anfallen. Diese bitten wir Sie direkt mit dem Grundstücksverkäufer zu besprechen. Unsere Hilfe /Serviceleistung zur Grundstücksbeschaffung ist kostenfrei.
Lage
Das projektierte Doppelhaus befindet sich in Neu-Anspach Hausen.
Die Ausrichtung ist perfekt und die Terrassen können zum Süden ausgerichtet werden!
Das Haus
Kategorie
Doppelhaushälfte
Baujahr
2026
Bezug
01.04.2027
Energie & Heizung
Warum sehe ich diese Anzeige? – Du siehst diese Anzeige basierend auf Ihrer Navigation auf unserer Website und den Suchkriterien, die du verwendet hast.
Weitere Energiedaten
Haustyp
KfW 40
Heizungsart
Fußbodenheizung, Luft-/Wasser-Wärmepumpe
Details
Objektbeschreibung
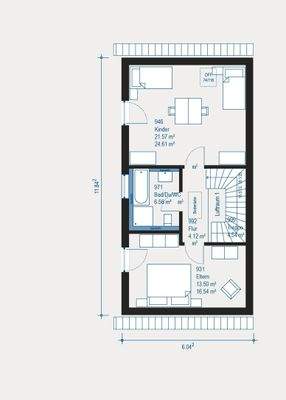
Diese projektiert geplante Doppelhaushälfte im Ortsteil von Neu-Anspach bietet Ihnen mit 3,0 Zimmern auf einer Wohnfläche von 113,64 m² ein ideales Zuhause, das ganz nach Ihren Wünschen gestaltet wird. Auf zwei Etagen verteilen sich zwei Schlafzimmer, ein modernes Badezimmer sowie ein zusätzliches Gäste-WC. Das großzügige 275...
Ausstattung
Das Fertighaus wird hier als Ausbauhaus mit allen Materialpaketen inkl. Architektenleistung angeboten.
Wichtig: Die Materialien sind für den weiteren kompletten Ausbau im Preis enthalten. lt. Baubeschreibung 06/2025.
Zu der im Preis inkludierten Ausstattung zählt unter anderem:
+ Energieeffizienzstandard...
Weitere Informationen
Sonstiges
allkauf steht für maximale Sicherheit, kurze Lieferzeiten und garantierte Fertigstellung. Wenn Sie sich den Traum vom eigenen Zuhause erfüllen möchten, bietet allkauf Ihnen umfassende Planungssicherheit mit Festpreis-, Liefer- und Fertigstellungsgarantie.
Mit den allkauf Dienstleistungspaketen...
Anbieter der Immobilie
allkauf haus GmbH
Ludwig Erhard Str. 2, 68162 Bad Vilbel
Online-ID: 2pcfr54
Referenznummer: 2301-13-kw11-78260
Finde Angebote wie dieses
Hier geht es zu unserem Impressum, den Allgemeinen Geschäftsbedingungen, den Hinweisen zum Datenschutz und nutzungsbasierter Online-Werbung.