

Dominic Wolf Immobilien GmbH
Herr Dominic Wolf
045 ···
Nr. anzeigenPreise & Kosten
Provision für Käufer
3,57% inkl. gesetzlicher Mehrwertsteuer vom Kaufpreis.
Ein entgeltpflichtiger Maklervertrag in gleicher Provisionshöhe wurde mit dem Verkäufer abgeschlossen. Info unter "Sonstiges"
Lage
Die Wohnung befindet sich in einer beliebten Wohnlage von Bad Schwartau in zentrumsnaher Lage.
Die Stadt Bad Schwartau ist die größte Stadt im Kreis Ostholstein und bietet eine sehr gute Infrastruktur. Sie finden im Zentrum alles was Sie benötigen. Einkaufsmöglichkeiten des täglichen Bedarfs, Einzelhandelsgeschäfte...
Die Wohnung
Bezug
nach Absprache
Derzeitige Nutzung
vermietet
Wohnanlage
Energie & Heizung
Warum sehe ich diese Anzeige? – Du siehst diese Anzeige basierend auf Ihrer Navigation auf unserer Website und den Suchkriterien, die du verwendet hast.
Energieausweistyp
Verbrauchsausweis
Gebäudetyp
Wohngebäude
Baujahr laut Energieausweis
1974
Wesentliche Energieträger
Gas / Gas
Gültigkeit
16.11.2020 bis 16.11.2030
Effizienzklasse
E
Endenergieverbrauch
156,90 kWh/(m²·a)
Weitere Energiedaten
Energieträger
Gas
Heizungsart
Zentralheizung
Details
Objektbeschreibung
INFO: Die hier gezeigten Bilder entstanden vor Einzug der aktuellen Mietpartei.
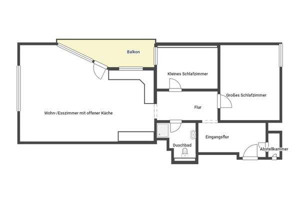
Die Wohnung wird vermietet verkauft: Die helle ca. 88 m² Wohnung befindet sich im 1. Obergeschoss eines gepflegten Hauses und verfügt über insgesamt 3 Zimmer, offener Küchenbereich mit Einbauküche, Duschbad, kleiner Abstellraum und einem...
Ausstattung
+ Offene Einbauküche mit Ceranfeldherd, Backofen, Geschirrspüler, Dunstabzug
+ Modernes Duschbad
+ Grauer Designvinyl, Bad weiß gefliest
+ Überdachter Balkon
+ Kleiner Abstellraum
+ Garage
Die Wohnung wurde 2022 modernisiert. Böden, Innentüren, Bad, Küche, Anstrich.
2025 wurden neue Strangleitungen im...
Weitere Informationen
Sonstiges
PROVISIONSHINWEIS:
Durch schriftliche Vereinbarung und / oder Inanspruchnahme unserer Maklertätigkeit kommt ein Maklervertrag mit uns (Dominic Wolf Immobilien GmbH), auf Grundlage der hier gemachten Exposéangaben / -bedingungen, zustande. Die Käuferprovision in Höhe von 3,57% inklusive der gesetzlichen...
Anbieter der Immobilie

Online-ID: 2pcc658
Referenznummer: DW-094-2026
Finde Angebote wie dieses
Hier geht es zu unserem Impressum, den Allgemeinen Geschäftsbedingungen, den Hinweisen zum Datenschutz und nutzungsbasierter Online-Werbung.