

Gründer Immobilien
Herr Ralf Gründer
049 ···
Nr. anzeigenPreise & Kosten
Provision für Käufer
provisionsfrei
Lage
Der Bungalow liegt in Walchum, einem idyllischen Ortsteil im westlichen Emsland in Nordwestdeutschland. Walchum zeichnet sich durch seine ruhige und ländliche Atmosphäre aus, die von weitläufigen Feldern und Wäldern geprägt ist. In unmittelbarer Nähe befinden sich kleine Geschäfte, Restaurants und Schulen, die den Bewohnern...
Das Haus
Kategorie
Bungalow
Baujahr
1996
Bezug
nach Vereinabrung
Details
Objektbeschreibung
Willkommen in Ihrem zukünftigen Zuhause! Dieser exklusive Winkelwalmdach-Bungalow, erbaut im Jahr 1996, bietet nicht nur eine einzigartige Architektur, sondern auch eine Fülle von modernen Annehmlichkeiten. Die Immobilie befindet sich in einer ruhigen Sackgasse in Walchum und bietet Ihnen höchste Privatsphäre auf einem...
Ausstattung
Küche
Ihre Küche ist nicht nur ein Ort des kulinarischen Schaffens, sondern auch das Herzstück Ihres Zuhauses. Diese weiße Einbauküche im charmanten Landhausstil vereint traditionelle Ästhetik mit modernster Funktionalität. Die Fronten in Landhausstil-Optik verleihen der Küche einen zeitlosen und gemütlichen Charakter...
Preisinformation
2 Garagenstellplätze
Weitere Informationen
Sonstiges
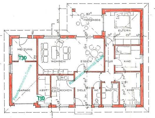
Wohnflächenaufteilung:
Diele ca. 7,93 m²
Flur ca. 9,06 m²
Wohnzimmer ca. 34,86
Küche ca. 9,91 m²
Schlafzimmer 1 ca. 17,56 m²
Schlafzimmer 2 ca. 10,13 m²
Schlafzimmer 3 ca. 9,33 m²
Hauswirtschaftsraum ca. ca. 3,62 m²
Badezimmer ca. 5,75 m²
Wintergarten ca. 34,43...
Anbieter der Immobilie
Gründer Immobilien
Haupstraße 97, 26892 Dörpen

Online-ID: 2pcag54
Referenznummer: 8486
Finde Angebote wie dieses
Hier geht es zu unserem Impressum, den Allgemeinen Geschäftsbedingungen, den Hinweisen zum Datenschutz und nutzungsbasierter Online-Werbung.