

Kraft Immobilien
Herr/Frau Korbinian Kraft
+49 ···
Nr. anzeigenPreise & Kosten
Kaution
4.005 €
Warum sehe ich diese Anzeige? – Du siehst diese Anzeige basierend auf Ihrer Navigation auf unserer Website und den Suchkriterien, die du verwendet hast.
Lage
Die Wohnung befindet sich in attraktiver Wohnlage von Passau und überzeugt durch eine gute Kombination aus ruhigem Umfeld und hervorragender Infrastruktur.
Einkaufsmöglichkeiten des täglichen Bedarfs, gastronomische Angebote sowie verschiedene Dienstleister sind in kurzer Zeit erreichbar. Auch die Anbindung an den...
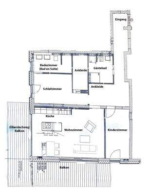
Die Wohnung
Wohnungslage
Erdgeschoss
Bezug
sofort
Wohnanlage
Energie & Heizung
Warum sehe ich diese Anzeige? – Du siehst diese Anzeige basierend auf Ihrer Navigation auf unserer Website und den Suchkriterien, die du verwendet hast.
Energieausweistyp
Bedarfsausweis
Gebäudetyp
Wohngebäude
Wesentliche Energieträger
Gas
Gültigkeit
21.10.2016 bis 20.10.2026
Endenergiebedarf
29,60 kWh/(m²·a)
Weitere Energiedaten
Energieträger
Gas
Heizungsart
Fußbodenheizung
Details
Objektbeschreibung
Diese hochwertige 3-Zimmer-Erdgeschosswohnung in Passau überzeugt durch eine moderne, offene Raumgestaltung und eine exklusive Ausstattung. Der großzügige Wohn-, Ess- und Kochbereich bildet das Herzstück der Wohnung und bietet dank großer Fensterelemente eine helle und freundliche Wohnatmosphäre mit schönem Blick ins...
Ausstattung
- 3-fach verglaste Fenster (Wärme- und Schallschutz)
- elektrische Rollläden im Schlafzimmer
- zentrale Schließanlage mit moderner Sicherheitstechnik
- Fußbodenheizung, raumweise steuerbar
- Terrassenüberdachung
- dezentral kontrollierte Raumlüftung mit Wärmerückgewinnung (nach Lüftungskonzept)
-...
Preisinformation
1 Tiefgaragenstellplatz, Miete: 65,00 EUR
Weitere Informationen
Sonstiges
Haben wir Ihr Interesse geweckt? Dann nutzen Sie bitte das Kontaktformular in der Anzeige und schreiben uns darüber eine E-Mail. Ein ausführliches Exposé senden wir Ihnen gerne nach vollständiger Kontaktanfrage.
Alle Angaben in diesem Exposé wurden sorgfältig und so vollständig wie möglich erstellt. Die...
Anbieter der Immobilie

Online-ID: 2pc6v53
Referenznummer: 26-WM-76
Finde Angebote wie dieses
Hier geht es zu unserem Impressum, den Allgemeinen Geschäftsbedingungen, den Hinweisen zum Datenschutz und nutzungsbasierter Online-Werbung.