

Peter Peters Immobilien GmbH &Co.KG
Herr Peter Peters
046 ···
Nr. anzeigenPreise & Kosten
Provision für Käufer
3,57 % inkl. MwSt.
Lage
Westerland ist ein Ortsteil der Gemeinde Sylt und Hauptort der Nordseeinsel.
Erleben Sie entspannte Strandtage am acht Kilometer langen Sandstrand. Wenige Meter hinter dem Strand treffen Sie auf die Fußgängerzone von Westerland, wo Sie in Boutiquen und Designerläden nach Herzenslust einkaufen können. Auch das Nachtleben...
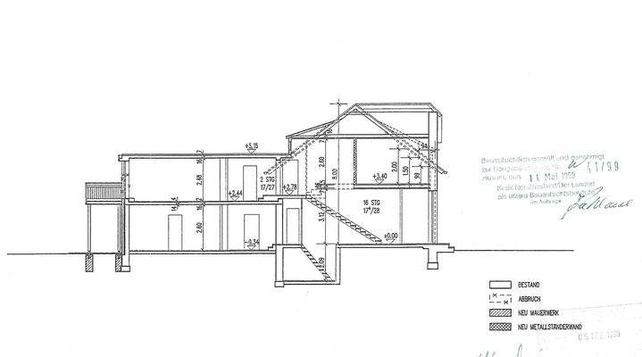
Das Haus
Kategorie
Mehrfamilienhaus
Baujahr
1907
Energie & Heizung
Warum sehe ich diese Anzeige? – Du siehst diese Anzeige basierend auf Ihrer Navigation auf unserer Website und den Suchkriterien, die du verwendet hast.
Weitere Energiedaten
Haustyp
Massivhaus
Energieträger
Gas
Details
Objektbeschreibung
Diese elegante Bäderstilvilla aus dem Jahr 1907 vereint den zeitlosen Charme historischer Architektur mit modernem Wohnkomfort und eröffnet zugleich eine äußerst attraktive Nutzungsperspektive für Investoren. Das durchdachte Raumkonzept erstreckt sich über das Erdgeschoss und das Dachgeschoss und wurde im Rahmen der...
Ausstattung
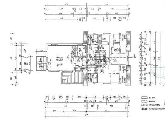
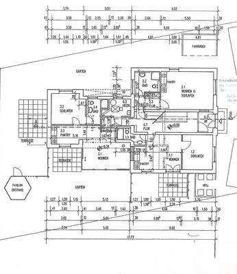
Die Einheiten verteilen sich wie folgt:
. Wohnung 1 umfasst ca. 31,67 m².
. Wohnung 2 bietet ca. 32,11 m².
. Wohnung 3 verfügt über ca. 40,55 m².
. Wohnung 4 erstreckt sich über ca. 46,52 m².
. Wohnung 5 & 6 bilden gemeinsam eine Dauerwohnung mit insgesamt ca. 71 m².
Ergänzend stehen rund 25,72 m²...
Preisinformation
5 Stellplätze
Weitere Informationen
Stichworte
Stellplatz vorhanden, Nutzfläche: 250,00 m², Gesamtfläche: 250,00 m², Anzahl der Badezimmer: 6, Anzahl Balkone: 1, Anzahl Terrassen: 3, Bundesland: Schleswig-Holstein
Anbieter der Immobilie

Online-ID: 2pc6u56
Referenznummer: 2233
Finde Angebote wie dieses
Hier geht es zu unserem Impressum, den Allgemeinen Geschäftsbedingungen, den Hinweisen zum Datenschutz und nutzungsbasierter Online-Werbung.