

ISH Immobilien OHG
Frau Sandra Bremer
041 ···
Nr. anzeigenPreise & Kosten
Provision für Käufer
3.57 % inkl. MwSt.
Lage
Die Hansestadt Stade liegt mit 50.000 Einwohnern auf halbem Weg zwischen Hamburg und der Nordsee. Stade hat eine über 1000-jährige Geschichte, die sich in der historischen Altstadt mit seinen wunderschönen Fachwerkhäusern widerspiegelt. Stade ist ein wirtschaftliches und kulturelles Behörden- und Dienstleistungszentrum im...
Die Wohnung
Wohnungslage
2. Geschoss (Dachgeschoss)
Bezug
ab sofort
Wohnanlage
Energie & Heizung
Warum sehe ich diese Anzeige? – Du siehst diese Anzeige basierend auf Ihrer Navigation auf unserer Website und den Suchkriterien, die du verwendet hast.
Energieausweistyp
Verbrauchsausweis
Gebäudetyp
Wohngebäude
Baujahr laut Energieausweis
1936
Wesentliche Energieträger
Gas
Gültigkeit
21.05.2025 bis 20.05.2035
Effizienzklasse
C
Endenergieverbrauch
85,21 kWh/(m²·a)
Weitere Energiedaten
Energieträger
Gas
Heizungsart
Zentralheizung
Details
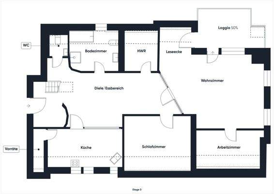
Objektbeschreibung
Diese Wohnung überzeugt durch ein sehr großzügigen Raumangebot.
Moderne Glaselemente verbinden den Wohn- Ess- und Kochbereich geschickt miteinander. Hierdurch wirkt das Herzstück der Wohnung lichtdurchflutet und bietet dennoch die Möglichkeit die Bereiche nach Wunsch separat voneinander abzutrennen. Das Wohnzimmer...
Ausstattung
- Vollbad aus 2021
- Gäste-WC aus 2022
- Einbauküche
- ausgebauter Dachboden als Lagerfläche
- Holzfußboden im Wohnbereich
- Kamin im Wohnzimmer
- Gasheizung von 2021
- Balkon 2019 saniert (12qm)
- 2 Kellerräume
- Carport mit Schuppen
Preisinformation
1 Stellplatz
Weitere Informationen
Sonstiges
Hinweis: Wir weisen höflich darauf hin, dass die hier gemachten Angaben ausschließlich auf den uns vom Eigentümer übermittelten Unterlagen und Daten basieren. Für die Richtigkeit und Vollständigkeit können wir keine Haftung übernehmen. Das Angebot ist freibleibend. Forderungen und Irrtümer vorbehalten.
Wenn...
Anbieter der Immobilie

Online-ID: 2pc4854
Referenznummer: 4972
Finde Angebote wie dieses
Hier geht es zu unserem Impressum, den Allgemeinen Geschäftsbedingungen, den Hinweisen zum Datenschutz und nutzungsbasierter Online-Werbung.