Innotech GbR

Kontaktiere den Anbieter schriftlich, es ist keine Telefonnummer hinterlegt.

Moderne Büroräume - Provisionsfrei

auf Anfrage
Nettomiete
200 m²
Bürofläche ca.
k.A.
Teilbare Fläche
8
Zimmer

Der Anbieter dieses Objekts hat gegenüber der AVIV Germany GmbH als Betreiber dieses Online-Marktplatzes erklärt, nicht als Unternehmer im Sinne des § 1 KSchG zu handeln. Die im Verbraucherschutzrecht der Union verankerten Verbraucherrechte (insbesondere Informationspflichten und Rücktritts- bzw. Widerrufsrechte) finden auf den Vertrag zwischen dem Anbieter des Objekts und Ihnen (dem Interessenten) keine Anwendung.

Provisionsfrei
Gewerblicher Anbieter

Der Anbieter dieses Objekts hat gegenüber der AVIV Germany GmbH als Betreiber dieses Online-Marktplatzes erklärt, als Unternehmer im Sinne des § 1 KSchG zu handeln.

AdresseOberwerrner Weg 34
97502 Euerbach 
Auf Karte ansehen

Preise & Kosten

Nettomiete auf Anfrage Heizkosten in Nebenkosten enthalten

Provision für Mieter

provisionsfrei

Lage

Büro-/Praxisfläche

Kategorie

Bürofläche

Baujahr

2012

Bezug

01.10.2026

Geschoss

Erdgeschoss

  • Böden: Fliesenboden, Teppichboden
  • Fenster: Holzfenster
  • voll klimatisiert

Energie & Heizung

info

Energieausweis: für diesen Gebäudetyp nicht notwendig

Weitere Energiedaten

Energieträger

Holz

Heizungsart

Fußbodenheizung

Details

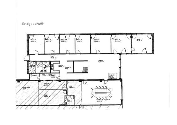
Objektbeschreibung

In einem großzügigen Areal von etwa 6.000 qm befinden sich moderne Gewerbeflächen zur Miete, die in einem besonders energieeffizienten Gebäude untergebracht sind. Die weitläufigen Räume im Erdgeschoss überzeugen durch große Fensterfronten, die viel Tageslicht hereinlassen und eine einladende Atmosphäre schaffen – perfekt für...

Mehr anzeigen

Weitere Informationen

Energiequelle:
Solarenergie

Anbieter der Immobilie

Innotech GbR

Am Klingenholz 31, 97490 Poppenhausen

Kontaktiere den Anbieter schriftlich, es ist keine Telefonnummer hinterlegt.

Anbieter-Profil Anbieter-Impressum

Online-ID: 2pbvb57

Finde Angebote wie dieses

imageimageimage

Hier geht es zu unserem Impressum, den Allgemeinen Geschäftsbedingungen, den Hinweisen zum Datenschutz und nutzungsbasierter Online-Werbung.