
MHW Haas Wohnbau GmbH
Herr Eduard Geyer
091 ···
Nr. anzeigenPreise & Kosten
Provision für Käufer
Bitte beachte, das Angebot kann bei Vertragsabschluss die Zahlung einer Provision beinhalten. Weitere Informationen erhältst Du vom Anbieter.
Lage
Veitsbronn bietet Ihnen das richtige Umfeld, in dem Sie sich wohlfühlen können.
Die Bücherei und das Veitsbad sind erste Anlaufstellen für Ihre Freizeitgestaltung, aber auch zahlreiche Vereine aus allen Bereichen des gesellschaftlichen Lebens bieten Zerstreuung und natürlich die Möglichkeit, sich zu engagieren.
Die...
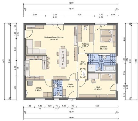
Das Haus
Kategorie
Bungalow
Baujahr
Neubau
Energie & Heizung
Warum sehe ich diese Anzeige? – Du siehst diese Anzeige basierend auf Ihrer Navigation auf unserer Website und den Suchkriterien, die du verwendet hast.
Weitere Energiedaten
Haustyp
KfW 55, Massivhaus
Energieträger
Elektro
Heizungsart
Fußbodenheizung, Luft-/Wasser-Wärmepumpe
Details
Objektbeschreibung
Objektbeschreibung
Hier entsteht eine kleine Wohnsiedlung für Ihre Familie.
-------------PROJEKTIERT--------------
Ihr neues Zuhause ist aktuell projektiert, Sie können somit alles noch an Ihre Wünsche anpassen und abändern. Das heißt auch, dass Sie es noch nicht gebaut besichtigen können. Wir beraten Sie in...
Weitere Informationen
Inklusivleistungen
Unsere Häuser werden im Standard schlüsselfertig ab flachen Grundstück errichtet.
Inklusive ist somit:
-Vermessung des Grundstücks (Höhenplan)
-Architektenleistungen/Ingenieursleistungen
-Bauantrag
-Bodengutachten
-Erdarbeiten ab flachen Grundstück
-Gründung/Frostschürze...
Dokumente
Anbieter der Immobilie
MHW Haas Wohnbau GmbH
Im Gewerbepark 20, 91093 Heßdorf
Online-ID: 2pbuh53
Finde Angebote wie dieses
Hier geht es zu unserem Impressum, den Allgemeinen Geschäftsbedingungen, den Hinweisen zum Datenschutz und nutzungsbasierter Online-Werbung.