
Dein Zuhause GmbH
Frau Bernardi
Kontaktiere den Anbieter schriftlich, es ist keine Telefonnummer hinterlegt.
Preise & Kosten
Provision für Käufer
provisionsfrei
Lage
Die Stadt Bogen befindet sich direkt vor den Toren zum Bayerischen Wald und liegt äußerst verkehrsgünstig an der A3 Verbindung Deggendorf - Regensburg und der B20 Verbindung Burghausen - Cham.
Die Kreisstadt Straubing ist zudem nur ca. 12 km bzw. 15 Minuten entfernt.
Für Schüler, Berufspendler und Reisende ist...
Das Renditeobjekt
Kategorie
Stadthaus
Baujahr
1960
Bezug
sofort
Frei ab
frei
Geschosse
3 Geschosse
Energie & Heizung
Warum sehe ich diese Anzeige? – Du siehst diese Anzeige basierend auf Ihrer Navigation auf unserer Website und den Suchkriterien, die du verwendet hast.
Energieausweistyp
Verbrauchsausweis
Gebäudetyp
Wohngebäude
Baujahr laut Energieausweis
1960
Wesentliche Energieträger
Gas
Effizienzklasse
C
Endenergieverbrauch
96,30 kWh/(m²·a) - Warmwasser enthalten
Weitere Energiedaten
Energieträger
Gas
Heizungsart
Zentralheizung
Details
Objektbeschreibung
Sie möchten zentral und dennoch ruhig wohnen?
Dann sind Sie hier richtig!
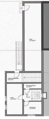
Das helle und ansprechende Stadthaus umfasst insgesamt ca. 143,7 m² Wohnfläche und verteilt diese auf drei Etagen.
Das Haus ist vollständig unterkellert und bietet ausreichend Lagerflächen: einen Hobbyraum, einen Abstellraum, einen...
Ausstattung
* eigener traumhafter Gartenanteil & zwei große Westterrassen mit insgesamt über 24 qm
* sehr ruhige Lage mit Weitblick dank erhöhter Geländelage
* großer offener Wohn- und Essbereich mit über 30 qm
* lichtdurchflutet
* Aluminiumfenster mit Außenrolläden
Das Haus befindet sich in einem gepflegten...
Weitere Informationen
Sonstiges
Dieses Angebot eignet sich hervorragend für Familien, Paare, Singles oder Kapitalanleger.
Haben wir Ihr Interesse geweckt?
Das beste Exposé ist die Immobilie selbst.
Wir freuen uns über Ihre Kontaktaufnahme.
Vereinbaren Sie gleich noch heute Ihren Besichtigungstermin. Um eine schnelle...
Anbieter der Immobilie
Dein Zuhause GmbH
Brunnenstr. 14, 90562 Heroldsberg
Frau Bernardi
Dein Ansprechpartner
Kontaktiere den Anbieter schriftlich, es ist keine Telefonnummer hinterlegt.
Online-ID: 2pbqa56
Finde Angebote wie dieses
Hier geht es zu unserem Impressum, den Allgemeinen Geschäftsbedingungen, den Hinweisen zum Datenschutz und nutzungsbasierter Online-Werbung.