

Bahr Immobilien-Verwaltungs GmbH
Herr Andreas Bahr
051 ···
Nr. anzeigenPreise & Kosten
Provision für Käufer
3,570 % inkl. MwSt.
Die Wohnung
Bezug
nach Vereinbarung
Wohnanlage
Energie & Heizung
Warum sehe ich diese Anzeige? – Du siehst diese Anzeige basierend auf Ihrer Navigation auf unserer Website und den Suchkriterien, die du verwendet hast.
Energieausweistyp
Bedarfsausweis
Gebäudetyp
Wohngebäude
Baujahr laut Energieausweis
1989
Wesentliche Energieträger
Erdgas
Gültigkeit
29.08.2018 bis 28.08.2028
Effizienzklasse
D
Endenergiebedarf
101,08 kWh/(m²·a)
Weitere Energiedaten
Energieträger
Gas
Details
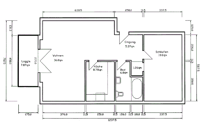
Objektbeschreibung
Die hier angebotene Eigentumswohnung befindet sich in einem Mehrfamilienhaus in der niedersächsischen Stadt Peine - eingebettet zwischen den wirtschaftsstarken Metropolregionen Hannover und Braunschweig. Dank dieser hervorragenden Lage erfreut sich Peine seit Jahren zunehmender Beliebtheit. Die Stadt bietet eine nahezu ideale...
Preisinformation
1 Garagenstellplatz
Weitere Informationen
Stichworte
Gesamtfläche: 75,00 m², Bundesland: Niedersachsen
Anbieter der Immobilie
Bahr Immobilien-Verwaltungs GmbH
Marktstraße 12, 31224 Peine

Online-ID: 2pbp653
Referenznummer: 0-1751
Finde Angebote wie dieses
Hier geht es zu unserem Impressum, den Allgemeinen Geschäftsbedingungen, den Hinweisen zum Datenschutz und nutzungsbasierter Online-Werbung.