

Homeday GmbH
Kontaktiere den Anbieter schriftlich, es ist keine Telefonnummer hinterlegt.
Preise & Kosten
Provision für Käufer
2,99% inkl. MwSt. Sofern der Kaufpreis unter 142140,47€ liegt, fällt eine Mindestprovision an von 4250,00€ inkl. MwSt.
Lage
Zentral gelegen und hervorragend angebunden, präsentiert sich dieses Wohn- und Geschäftshaus in attraktiver Lage von Siegenburg. Der Markt bietet eine solide Infrastruktur, die sowohl den Alltag von Familien als auch die Anforderungen von Gewerbetreibenden ideal unterstützt.
Einkaufsmöglichkeiten für den täglichen...
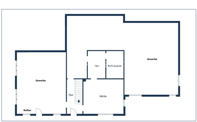
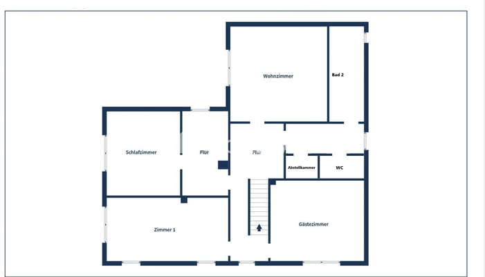
Das Haus
Kategorie
Einfamilienhaus
Baujahr
1935
Bezug
nach Vereinbarung
Energie & Heizung
Warum sehe ich diese Anzeige? – Du siehst diese Anzeige basierend auf Ihrer Navigation auf unserer Website und den Suchkriterien, die du verwendet hast.
Energieausweistyp
Bedarfsausweis
Gebäudetyp
Wohngebäude
Baujahr laut Energieausweis
1935
Wesentliche Energieträger
Öl
Gültigkeit
25.03.2026 bis 25.03.2036
Effizienzklasse
H
Endenergiebedarf
258,91 kWh/(m²·a)
Weitere Energiedaten
Energieträger
Öl
Heizungsart
Zentralheizung
Details
Ausstattung
Auf einem großzügigen Grundstück von rund 1.030 Quadratmetern eröffnet sich hier eine seltene Kombination aus Wohnen und Arbeiten. Eingebettet in ein gewachsenes Umfeld und mit viel Platz für individuelle Gestaltung. Der Garten mit gemütlichem Freisitz lädt zum Verweilen ein, während die Garage und mehrere Stellplätze...
Preisinformation
1 Stellplatz
1 Garagenstellplatz
Weitere Informationen
Sonstiges
Unsere Makler beraten Sie gerne persönlich per Telefon oder Videokonferenz. Schicken Sie uns einfach eine Anfrage über Immowelt und registrieren Sie sich auf unserer Kundenplattform myHomeday. Einen Link zu myHomeday erhalten Sie automatisch nach Ihrer Anfrage per E-Mail. Dort können Sie die Adresse und Dokumente...
Anbieter der Immobilie
Homeday GmbH
Axel-Springer-Straße 65 , 10969 Berlin
Kontaktiere den Anbieter schriftlich, es ist keine Telefonnummer hinterlegt.
Online-ID: 2pbmu56
Referenznummer: 3JNMDEO3
Finde Angebote wie dieses
Hier geht es zu unserem Impressum, den Allgemeinen Geschäftsbedingungen, den Hinweisen zum Datenschutz und nutzungsbasierter Online-Werbung.