
Debeka Bausparkasse AG
Herr Alexander Schikorr
Kontaktiere den Anbieter schriftlich, es ist keine Telefonnummer hinterlegt.
Preise & Kosten
Provision für Käufer
3,57% inkl. MwSt.
Lage
Die Straße des Objektes befindet sich im Baunataler Stadtteil Altenritte, einer ruhigen und gewachsenen Wohnlage mit überwiegend Ein- und Zweifamilienhäusern. Die Umgebung ist geprägt von einer angenehmen Nachbarschaftsatmosphäre, wenig Durchgangsverkehr und einem insgesamt familienfreundlichen Charakter.
Altenritte...
Das Haus
Kategorie
Einfamilienhaus
Baujahr
1977
Energie & Heizung
Warum sehe ich diese Anzeige? – Du siehst diese Anzeige basierend auf Ihrer Navigation auf unserer Website und den Suchkriterien, die du verwendet hast.
Energieausweistyp
Verbrauchsausweis
Gebäudetyp
Wohngebäude
Wesentliche Energieträger
Gas
Gültigkeit
23.03.2026 bis 22.03.2036
Effizienzklasse
D
Endenergieverbrauch
105,18 kWh/(m²·a)
Weitere Energiedaten
Energieträger
Gas
Heizungsart
Etagenheizung, offener Kamin
Details
Objektbeschreibung
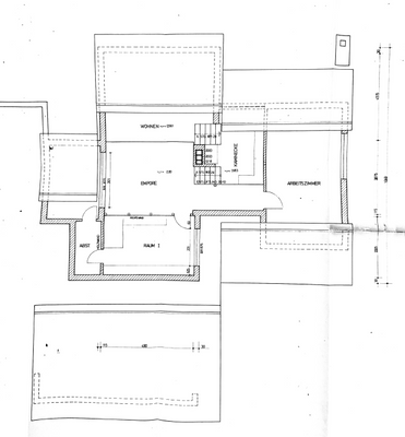
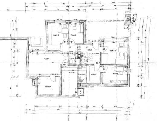
Dieses Einfamilienhaus aus dem Baujahr 1977 bietet mit ca. 210 m² Wohnfläche und einer Nutzfläche von mehr als 40 m² ein großzügiges Platzangebot auf einem ca. 1.204 m² großen Grundstück. Die Immobilie eignet sich ideal für Familien und bietet vielfältige Nutzungsmöglichkeiten.
Der Eingangsbereich führt in einen...
Weitere Informationen
Sonstiges
Die genannten Informationen beruhen auf den Angaben des Verkäufers. Für die Richtigkeit und Vollständigkeit der Angaben wird keine Gewähr oder Haftung übernommen.
Seit dem 25. Mai 2018 gilt in Deutschland die EU-Datenschutz-Grundverordnung (DS-GVO). Sie regelt, wie private Unternehmen und öffentliche...
Anbieter der Immobilie

Debeka Bausparkasse AG
Debeka-Platz 2, 56073 Koblenz
Herr Alexander Schikorr
Dein Ansprechpartner
Kontaktiere den Anbieter schriftlich, es ist keine Telefonnummer hinterlegt.
Online-ID: 2pbma57
Referenznummer: 1009796#4Fd7ty
Finde Angebote wie dieses
Hier geht es zu unserem Impressum, den Allgemeinen Geschäftsbedingungen, den Hinweisen zum Datenschutz und nutzungsbasierter Online-Werbung.