NeWCoM GmbH - Detlef Wölk

Herr Malte Hellwig

Doppelhaushälfte mit 113 m² auf 367 m² in Bergheim

€ 489.833
Kaufpreis
113,64 m²
Wohnfläche ca.
3
Zimmer
367 m²
Grundstücksfl. ca.

Der Anbieter dieses Objekts hat gegenüber der AVIV Germany GmbH als Betreiber dieses Online-Marktplatzes erklärt, nicht als Unternehmer im Sinne des § 1 KSchG zu handeln. Die im Verbraucherschutzrecht der Union verankerten Verbraucherrechte (insbesondere Informationspflichten und Rücktritts- bzw. Widerrufsrechte) finden auf den Vertrag zwischen dem Anbieter des Objekts und Ihnen (dem Interessenten) keine Anwendung.

Gewerblicher Anbieter

Der Anbieter dieses Objekts hat gegenüber der AVIV Germany GmbH als Betreiber dieses Online-Marktplatzes erklärt, als Unternehmer im Sinne des § 1 KSchG zu handeln.

AdresseStraße nicht freigegeben
50129 Bergheim 
(Büsdorf)
Auf Karte ansehen

Preise & Kosten

Kaufpreis € 489.833

Provision für Käufer

Das Grundstücksangebot (Verkauf/Vermittlung) erfolgt über einen kooperierenden Makler gem. §34cGewO.

Lage

Die Doppelhaushälfte befindet sich im neu erschlossenen Neubaugebiet von Bergheim, das durch eine ruhige und familienfreundliche Umgebung besticht. Die Infrastruktur ist hervorragend: Einkaufsmöglichkeiten, Schulen und Kindergärten sind bequem erreichbar. Freizeitaktivitäten in der Natur sowie vielfältige Sport- und...

Mehr anzeigen

Das Haus

Kategorie

Doppelhaushälfte

Baujahr

2027

  • Zustand: projektiert
  • Gäste-WC
  • barrierefrei

Energie & Heizung

Weitere Energiedaten

Haustyp

KfW 55

Details

Objektbeschreibung

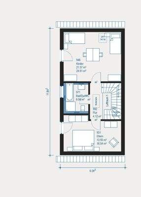
Neubau-Doppelhaushälfte mit 113 m² - individuell geplant, schlüsselfertig vorbereitet.
Diese projektiert gefertigte Doppelhaushälfte bietet auf 113,64 m² Wohnfläche ein durchdachtes Raumkonzept auf zwei Etagen. Zwei Schlafzimmer, ein modernes Badezimmer sowie ein zusätzliches Gäste-WC sorgen für eine komfortable...

Mehr anzeigen

Ausstattung

Die Ausstattung der Doppelhaushälfte überzeugt durch eine hochwertige Holzrahmenbauweise mit moderner, energieeffizienter Wand- und Gebäudetechnik. Zu den baulichen Highlights zählen dreifach verglaste Fenster mit Aluminiumrollläden, eine effiziente Luft-Wasser-Wärmepumpe sowie eine kontrollierte Be- und Entlüftungsanlage mit...

Mehr anzeigen

Weitere Informationen

Sonstiges
allkauf steht für maximale Sicherheit, kurze Lieferzeiten und garantierte Fertigstellung. Mit unseren Fertighäusern nehmen wir Ihnen viele Unsicherheiten ab, denn wir bieten kurze Lieferzeiten, eine Liefergarantie sowie Festpreis- und Fertigstellungsgarantie. Unsere flexiblen Dienstleistungspakete - vom...

Mehr anzeigen

Anbieter der Immobilie

Partner

NeWCoM GmbH - Detlef Wölk

Militscher Straße 29, 53881 Euskirchen

user

Herr Malte Hellwig

Dein Ansprechpartner

Anbieter-Website Anbieter-Profil Anbieter-Impressum

Online-ID: 2pbfe56

Referenznummer: 4264-DO1BPAT240326

Finde Angebote wie dieses

imageimageimage

Hier geht es zu unserem Impressum, den Allgemeinen Geschäftsbedingungen, den Hinweisen zum Datenschutz und nutzungsbasierter Online-Werbung.