

terrakon Immobilienberatung
Herr Martin Guido Altmann
061 ···
Nr. anzeigenPreise & Kosten
Provision für Käufer
2,975 % inkl. MwSt.
Lage
Die Gemeinde Seeheim-Jugenheim gehört zum Landkreis Darmstadt-Dieburg und liegt in der länderübergreifenden Ferienregion Bergstraße in Südhessen. Die Lage zwischen den Metropolregionen Frankfurt-Rhein-Main und Rhein-Neckar ist so zentral und trotzdem grün zugleich, dass sie auch für Arbeitnehmer aus Mannheim, Heidelberg...
Das Haus
Kategorie
Reihenmittelhaus
Baujahr
2013
Energie & Heizung
Warum sehe ich diese Anzeige? – Du siehst diese Anzeige basierend auf Ihrer Navigation auf unserer Website und den Suchkriterien, die du verwendet hast.
Energieausweistyp
Bedarfsausweis
Gebäudetyp
Wohngebäude
Wesentliche Energieträger
KWK regenerativ
Gültigkeit
19.03.2026 bis 18.03.2026
Effizienzklasse
C
Endenergiebedarf
91,20 kWh/(m²·a)
Details
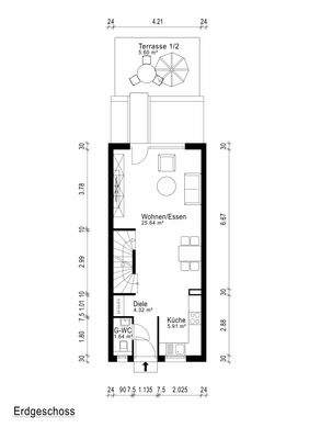
Objektbeschreibung
In Jugenheim erwartet Sie dieses sehr gepflegte Reihenmittelhaus.
Im Erdgeschoß befindet sich der helle und offen gehaltene Wohn-Ess-Bereich mit einer modernen Einbauküche. Von dort gelangen Sie auf die Terrasse, die mit einem gemütlichen Lounge-Bereich, der überdacht werden kann, zum Entspannen einlädt.
Im Obergeschoß...
Ausstattung
- Blockheizkraftwerk
- Moderne Einbauküche
- Gäste WC im Erdgeschoß
- Bad mit Wanne im Obergeschoß
- 1 Garage
- 1 Stellplatz
Preisinformation
2 Garagenstellplätze
Weitere Informationen
Sonstiges
Bildhinweis:
Für einen erweiterten Blickwinkel der Raumansicht werden Innenräume mit einem Weitwinkelobjektiv fotografiert. Somit können die Räume größer wirken, als sie real sind.
Haftung:
Bitte beachten Sie, dass alle Angaben und von uns weitergegebenen Objektinformationen, Unterlagen, Pläne etc...
Anbieter der Immobilie
terrakon Immobilienberatung
Waldstraße 5, 64409 Messel

Online-ID: 2pb9x52
Referenznummer: VK260306
Finde Angebote wie dieses
Hier geht es zu unserem Impressum, den Allgemeinen Geschäftsbedingungen, den Hinweisen zum Datenschutz und nutzungsbasierter Online-Werbung.