
Crozilla.com
Eurovilla
+38 ···
Nr. anzeigenPreise & Kosten
Provision für Käufer
Bitte beachte, das Angebot kann bei Vertragsabschluss die Zahlung einer Provision beinhalten. Weitere Informationen erhältst Du vom Anbieter.
Die Immobilie
Zu diesem Angebot wurden vom Anbieter keine weiteren Daten hinterlegt. Für weitere Informationen bitte den Anbieter kontaktieren.
Nach Informationen fragenDetails
Objektbeschreibung
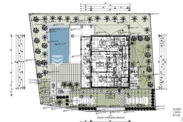
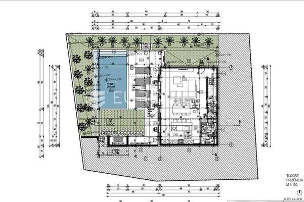
U prekrasnoj Maslinici, na zapadnoj obali otoka Solte, smjestila se luksuzna suvremeno dizajnirana vila koja spaja eleganciju, udobnost i mediteransku prirodu. Vila se nalazi na parceli od 470 m2, u mirnom okruzenju, samo 450 metara od mora i Marine Martinis Marchi, s predivnim pogledom na uvalu i okolni arhipelag.Vila je...
Weitere Informationen
Stichworte
Anzahl der Schlafzimmer: 3, 1 Etagen
Anbieter der Immobilie
Crozilla.com
Nova cesta 60, 10000 ZAGREB
Online-ID: 2pb7s54
Referenznummer: 17376690_14
Finde Angebote wie dieses
Hier geht es zu unserem Impressum, den Allgemeinen Geschäftsbedingungen, den Hinweisen zum Datenschutz und nutzungsbasierter Online-Werbung.