
LUTTER Immobilien Unternehmensgesellschaft mbH
Herr Patrick Stahl
+49 ···
Nr. anzeigenPreise & Kosten
Kaution
3 Monatskaltmieten
Provision für Mieter
3,57 Monatskaltmieten inkl. MwSt.
Warum sehe ich diese Anzeige? – Du siehst diese Anzeige basierend auf Ihrer Navigation auf unserer Website und den Suchkriterien, die du verwendet hast.
Lage
- im Großraum Rostock
- Lage im Gewerbegebiet Roggentin
- unmittelbare Anbindung an B 110 und BAB A 19
Die Industriefläche
Kategorie
Lagerhalle
Baujahr
2023
Bezug
nach Absprache
Energie & Heizung
Warum sehe ich diese Anzeige? – Du siehst diese Anzeige basierend auf Ihrer Navigation auf unserer Website und den Suchkriterien, die du verwendet hast.
Wärme
Strom
Energieausweistyp
Bedarfsausweis
Gebäudetyp
Nicht-Wohngebäude
Wesentliche Energieträger
Erdwärme
Gültigkeit
13.02.2024 bis 14.12.2031
Endenergiebedarf (Wärme)
22,60 kWh/(m²·a)
Endenergiebedarf (Strom)
36,60 kWh/(m²·a)
Weitere Energiedaten
Energieträger
Erdwärme
Details
Objektbeschreibung
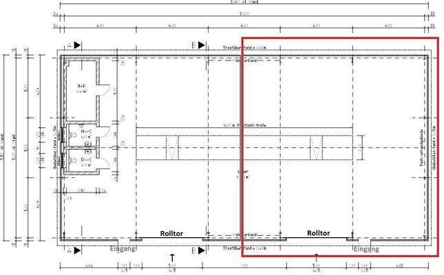
Die 2023 fertiggestellte, moderne Warmhalle bietet aktuell rund ca. 225 m² - etwa die Hälfte der Gesamtfläche - zur Nutzung für neue Mieter. Dank ihrer verkehrsgünstigen Lage in unmittelbarer Nähe zur B110 und A19 gewährleistet sie eine optimale Anbindung mit schnellen Zu- und Abfahrten sowohl für den Nah- als auch für den...
Ausstattung
Zur Vermietung steht eine Teilfläche einer hochwertigen Warmhalle (Gesamtgröße ca. 30 m x 15 m). Die angebotene, durch einen Stabgitterzaun abgetrennte Einheit umfasst ca. 15 m x 15 m und eignet sich ideal für Lager- oder Logistikzwecke.
Die Fläche verfügt über einen separaten Eingang sowie ein fest zugeordnetes...
Weitere Informationen
Sonstiges
Besuchen Sie auch gerne unsere Homepage.
www.LUTTER.net
Wir freuen uns auf Ihr Feedback - Ihr LUTTER Immobilien-Team
Stichworte
Stellplatz vorhanden, Lagerfläche: 225,00 m², Gesamtfläche: 225,00 m², Bundesland: Mecklenburg-Vorpommern
Anbieter der Immobilie
LUTTER Immobilien Unternehmensgesellschaft mbH
Kröpeliner Straße 57, 18055 Rostock
Online-ID: 2pb5556
Referenznummer: 8195
Finde Angebote wie dieses
Hier geht es zu unserem Impressum, den Allgemeinen Geschäftsbedingungen, den Hinweisen zum Datenschutz und nutzungsbasierter Online-Werbung.