
2 COME HOME Immobilien
Herr Joshua Steinberg
004 ···
Nr. anzeigenPreise & Kosten
Provision für Käufer
3,57 % des Kaufpreises inkl. 19 % ges. MwSt.
Lage
Die angebotene Maisonette-Wohnung befindet sich in einem begehrten Stadtteil von Hilden, einer charmanten Stadt in Nordrhein-Westfalen. Eingebettet in eine ruhige und dennoch zentral gelegene Nachbarschaft, bietet die Umgebung eine ideale Mischung aus städtischem Komfort und naturnahem Wohnen.
Hilden zeichnet sich...
Die Wohnung
Kategorie
Maisonette
Bezug
ab sofort
Wohnanlage
Energie & Heizung
Warum sehe ich diese Anzeige? – Du siehst diese Anzeige basierend auf Ihrer Navigation auf unserer Website und den Suchkriterien, die du verwendet hast.
Energieausweistyp
Verbrauchsausweis
Gebäudetyp
Wohngebäude
Baujahr laut Energieausweis
1969
Wesentliche Energieträger
ELEKTRO
Gültigkeit
bis 29.04.2035
Effizienzklasse
A
Endenergieverbrauch
36,40 kWh/(m²·a)
Weitere Energiedaten
Energieträger
Elektro
Heizungsart
Etagenheizung
Details
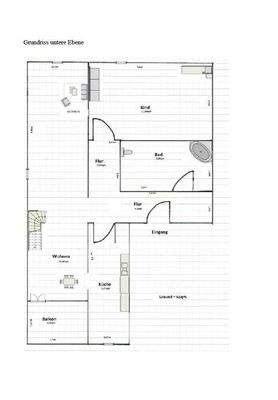
Objektbeschreibung
Zum Verkauf steht eine attraktive Maisonette-Wohnung auf einem Erbpachtgrundstück in Hilden, die sich ideal für Paare und kleine Familien eignet. Die im Jahr 1969 erbaute und gepflegte Immobilie beeindruckt durch ihren durchdachten Grundriss und erstreckt sich über zwei Etagen mit einer Wohnfläche von ca. 89 m². Zusätzlich...
Ausstattung
Die Maisonettewohnung präsentiert sich mit einem durchdachten Grundriss und hochwertigem Echtholzparkett, das den Wohnräumen eine warme und einladende Atmosphäre verleiht.
Der sonnige Balkon sowie ein eigenes Gartenabteil mit Gartenschuppen bieten zusätzliche Aufenthaltsqualität im Freien.
Zur Wohnung gehört ein...
Weitere Informationen
Sonstiges
Die Wohnung befindet sich auf einem Erbpachtgrundstück, die monatliche Erbpacht liegt bei 75,27 €
Stichworte
Nutzfläche: 10,00 m², Anzahl der Schlafzimmer: 2, Anzahl der Badezimmer: 2, Anzahl Balkone: 1, 2 Etagen
Anbieter der Immobilie
2 COME HOME Immobilien
Markt 14 , 40721 Hilden
Online-ID: 2pb4652
Referenznummer: 2026-490
Finde Angebote wie dieses
Hier geht es zu unserem Impressum, den Allgemeinen Geschäftsbedingungen, den Hinweisen zum Datenschutz und nutzungsbasierter Online-Werbung.