
RE/MAX Wohnerlebnis Eislingen
Frau Ines Krakan Özkan
004 ···
Nr. anzeigenPreise & Kosten
Kaution
1.700,00
Warum sehe ich diese Anzeige? – Du siehst diese Anzeige basierend auf Ihrer Navigation auf unserer Website und den Suchkriterien, die du verwendet hast.
Lage
Diese Wohnung zur Miete befindet sich in Ursenwang, das zu Göppingen-Holzheim gehört. In Ursenwang selbst finden Sie alles, was Sie zum täglichen Leben brauchen: Bäckerei, Supermarkt, Drogeriemarkt, Blumenladen, Bank und Apotheke u.v.m. können Sie in wenigen Gehminuten erreichen. Nach Göppingen gibt es eine tolle...
Die Wohnung
Wohnungslage
3. Geschoss
Bezug
sofort
Wohnanlage
Energie & Heizung
Warum sehe ich diese Anzeige? – Du siehst diese Anzeige basierend auf Ihrer Navigation auf unserer Website und den Suchkriterien, die du verwendet hast.
Energieausweistyp
Verbrauchsausweis
Gebäudetyp
Wohngebäude
Baujahr laut Energieausweis
1962
Wesentliche Energieträger
FERN
Gültigkeit
18.10.2017 bis 18.10.2027
Effizienzklasse
B
Endenergieverbrauch
67,00 kWh/(m²·a)
Weitere Energiedaten
Energieträger
Fernwärme
Heizungsart
Zentralheizung
Details
Objektbeschreibung
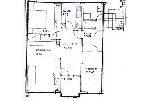
Diese 3,5-Zimmer-Wohnung mit ca. 79m² Wohnfläche liegt im Dachgeschoss (3.OG) eines 8-Familien-Hauses. Das ursprünglich 1962 erbaute Haus wurde 2012 umfassend saniert und modern gestaltet.
Im Rahmen der Renovierungsarbeiten in der Wohnung wurden neue Fliesen verlegt, die Stromleitungen erneuert sowie in den Schlafzimmern...
Ausstattung
Balkon
Keller
Stellplatz
EBK
Preisinformation
850 EUR inkl. Küche und E-Geräten + 40 EUR Stellplatz, 1 Stellplatz, Miete: 40,00 EUR
Nettokaltmiete: 850,00 EUR
Weitere Informationen
Sonstiges
Haben wir Ihr Interesse geweckt?
Ich freue mich auf Ihre Anfrage. Anschließend erhalten Sie ein ausführliches Exposé.
---
Verpassen Sie keine Immobilie mehr!
Unser komplettes Immobilienangebot finden Sie immer zuerst auf www.remax.de
Gerne helfen wir Ihnen auch beim Verkauf oder der Vermietung...
Anbieter der Immobilie
Online-ID: 2pax654
Referenznummer: 1148-1241-BM
Finde Angebote wie dieses
Hier geht es zu unserem Impressum, den Allgemeinen Geschäftsbedingungen, den Hinweisen zum Datenschutz und nutzungsbasierter Online-Werbung.