
Crozilla.com
MAXXIA Real Estate
+38 ···
Nr. anzeigenPreise & Kosten
Provision für Käufer
Bitte beachte, das Angebot kann bei Vertragsabschluss die Zahlung einer Provision beinhalten. Weitere Informationen erhältst Du vom Anbieter.
Die Immobilie
Zu diesem Angebot wurden vom Anbieter keine weiteren Daten hinterlegt. Für weitere Informationen bitte den Anbieter kontaktieren.
Nach Informationen fragenDetails
Objektbeschreibung
Dugi otok - Zman
Eine luxuriöse Villa mit Pool nur 50 m vom Meer entfernt!
Ruhige Umgebung, freier Blick auf das Meer, eine ideale Luxusimmobilie.
NEUBAU!
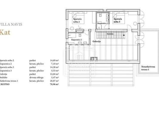
Die Villa mit einer Gesamtfläche von 255 m2 befindet sich auf einem Grundstück von 721 m2.
Es besteht aus Erdgeschoss und Obergeschoss...
Weitere Informationen
Stichworte
Anzahl der Schlafzimmer: 3, Anzahl der Badezimmer: 3, 1 Etagen
Anbieter der Immobilie
Crozilla.com
Nova cesta 60, 10000 ZAGREB
Online-ID: 2pav355
Referenznummer: 19192862_3
Finde Angebote wie dieses
Hier geht es zu unserem Impressum, den Allgemeinen Geschäftsbedingungen, den Hinweisen zum Datenschutz und nutzungsbasierter Online-Werbung.