
McMakler GmbH
Ihr McMakler Team
080 ···
Nr. anzeigenPreise & Kosten
Provision für Käufer
Die Provision i.H.v. 3,57 % inkl. MwSt. ist mit Kaufvertragsbeurkundung fällig, sofern der Verkaufspreis über 83.000,00 € liegt.
Liegt der Verkaufspreis dagegen bei/unter 83. Weitere Informationen siehe Provisionshinweis.
Lage
Lage: Grüne Feldrandlage von Neetzow-Liepen-Priemen begeistert Ruhesuchende und Naturliebhaber
Bildung und Betreuung: Kindergärten und einigen Schulen in ca. 6 km bis ca. 9 km Entfernung bieten Familienfreundlichkeit
Nahversorgung: Rund 6 km zu wichtigen Anlaufstellen wie Supermärkten, Apotheken und...
Das Haus
Kategorie
Doppelhaushälfte
Baujahr
1900
Bezug
ab sofort
Energie & Heizung
Warum sehe ich diese Anzeige? – Du siehst diese Anzeige basierend auf Ihrer Navigation auf unserer Website und den Suchkriterien, die du verwendet hast.
Energieausweistyp
Bedarfsausweis
Gebäudetyp
Wohngebäude
Baujahr laut Energieausweis
1900
Wesentliche Energieträger
Öl
Effizienzklasse
G
Endenergiebedarf
242,70 kWh/(m²·a)
Weitere Energiedaten
Energieträger
Öl
Details
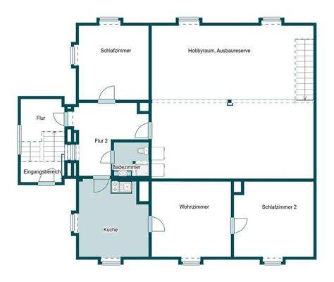
Objektbeschreibung
Objektnr: 1069359
Als ideale Option für Eigennutzung oder Investment präsentiert sich dieses Objekt in Neetzow-Liepen OT Priemen, sicher und beschaulich in einer Seitenstraße. Hier profitieren Sie besonders von der Feldrandlage und der Peene: Die frische Luft und die natürliche Umgebung sind attraktiv für Freunde...
Ausstattung
+ In ruhiger Umgebung in Feldrandlage von Neetzow-Liepen an der Peene, als Kapitalanlage und zur individuellen Privaten Nutzung
+ Erholung pur: Der teils sichtgeschützte Garten auf ca. 2.748 m² Grund lädt zum Verweilen ein - eine Terrasse bereichert das Erlebnis
+ Das Objekt präsentiert sich in einem modernisierten...
Weitere Informationen
Provisionshinweis
Die Provision i.H.v. 3,57 % inkl. MwSt. ist mit Kaufvertragsbeurkundung fällig, sofern der Verkaufspreis über 83.000,00 € liegt.
Liegt der Verkaufspreis dagegen bei/unter 83.000,00 €, ist die fest vereinbarte Mindestprovision i.H.v. mind. 5.950,00 € inkl. MwSt. mit Kaufvertragsbeurkundung fällig...
Anbieter der Immobilie
McMakler GmbH
Am Postbahnhof 17, 10243 Berlin
Online-ID: 2pass56
Referenznummer: 54385d2f38
Finde Angebote wie dieses
Hier geht es zu unserem Impressum, den Allgemeinen Geschäftsbedingungen, den Hinweisen zum Datenschutz und nutzungsbasierter Online-Werbung.