
Schwabenhaus Rosenheim - Niklas Schumacher - Handelsvertretung für die Schwabenhaus GmbH
Herr Niklas Schumacher
+49 ···
Nr. anzeigenPreise & Kosten
Provision für Käufer
provisionsfrei
Lage
Raubling - Wohnen im Alpenvorland mit bester Infrastruktur
Raubling, eine charmante Gemeinde im oberbayerischen Landkreis Rosenheim, bietet eine perfekte Kombination aus ländlicher Idylle und moderner Infrastruktur. Eingebettet in das malerische Alpenvorland, überzeugt der Ort durch seine hohe Lebensqualität und...
Das Haus
Kategorie
Einfamilienhaus
Energie & Heizung
Warum sehe ich diese Anzeige? – Du siehst diese Anzeige basierend auf Ihrer Navigation auf unserer Website und den Suchkriterien, die du verwendet hast.
Weitere Energiedaten
Heizungsart
Fußbodenheizung
Details
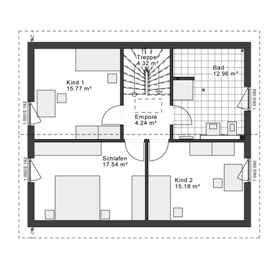
Objektbeschreibung
Bist du bereit? Lass uns loslegen!
Warum warten, wenn dein eigenes Zuhause nur eine Entscheidung entfernt ist?
Unsere Wegbegleiter holen dich dort ab, wo du gerade stehst, und ebnen deinen persönlichen Weg zum Wohneigentum.
Fehlt dir noch das passende Grundstück? Wir helfen dir, es zu finden.
Hast du Fragen...
Ausstattung
THINK BLACK - All in.
- Schlüsselfertig & sofort bezugsbereit - ohne zusätzlichen Aufwand
- Kompletter Innenausbau - keine Handwerkersuche, kein Planungsstress
- Durchdachte Raumaufteilung - moderne Wohnkonzepte für jede Lebensphase
- Innovative Haustechnik - zukunftssicheres Wohnen mit höchster...
Weitere Informationen
Sonstiges
Das Haus ist projektiert inkl. Grundstück. Das Grundstück wird in Kommission angeboten bzw. direkt von Dritten verkauft. Daher kann der genannte Preis aufgrund aktueller Marktsituationen schwanken.
Die Bauabwicklung kann kurzfristig nach Grundstückserwerb begonnen werden. Bilder zeigen möglicherweise...
Anbieter der Immobilie
Schwabenhaus Rosenheim - Niklas Schumacher - Handelsvertretung für die Schwabenhaus GmbH
Hauptstraße 4d, 83339 Chieming

Online-ID: 2paqh53
Referenznummer: WB-34241-Raubling
Finde Angebote wie dieses
Hier geht es zu unserem Impressum, den Allgemeinen Geschäftsbedingungen, den Hinweisen zum Datenschutz und nutzungsbasierter Online-Werbung.