NeWCoM GmbH - Detlef Wölk

Herr Malte Hellwig

Euer eigenes Zuhause auf einem Grundstück, das es so kein zweites Mal gibt

€ 616.436
Kaufpreis
113,64 m²
Wohnfläche ca.
3
Zimmer
360 m²
Grundstücksfl. ca.

Der Anbieter dieses Objekts hat gegenüber der AVIV Germany GmbH als Betreiber dieses Online-Marktplatzes erklärt, nicht als Unternehmer im Sinne des § 1 KSchG zu handeln. Die im Verbraucherschutzrecht der Union verankerten Verbraucherrechte (insbesondere Informationspflichten und Rücktritts- bzw. Widerrufsrechte) finden auf den Vertrag zwischen dem Anbieter des Objekts und Ihnen (dem Interessenten) keine Anwendung.

Gewerblicher Anbieter

Der Anbieter dieses Objekts hat gegenüber der AVIV Germany GmbH als Betreiber dieses Online-Marktplatzes erklärt, als Unternehmer im Sinne des § 1 KSchG zu handeln.

AdresseStraße nicht freigegeben
50321 Brühl 
Auf Karte ansehen

Preise & Kosten

Kaufpreis € 616.436

Provision für Käufer

Das Grundstücksangebot (Verkauf/Vermittlung) erfolgt über einen kooperierenden Makler gem. §34cGewO.

Lage

Die Doppelhaushälfte befindet sich in einem attraktiven Wohngebiet in Brühl. Die Lage bietet eine hervorragende Infrastruktur mit guter Anbindung an öffentliche Verkehrsmittel, Einkaufsmöglichkeiten, Schulen und Kindergärten in unmittelbarer Nähe. Freizeitmöglichkeiten in der Region ergänzen das Wohnangebot ideal und bieten...

Mehr anzeigen

Das Haus

Kategorie

Doppelhaushälfte

Baujahr

2027

  • Zustand: projektiert
  • Gäste-WC
  • barrierefrei

Energie & Heizung

Weitere Energiedaten

Haustyp

KfW 55

Heizungsart

Fußbodenheizung

Details

Objektbeschreibung

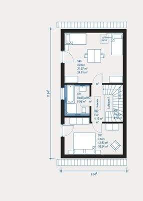
Diese projektierten Doppelhaushälften in Brühl bieten Ihnen die Möglichkeit, Ihr neues Zuhause ganz nach Ihren individuellen Wünschen und Vorstellungen zu gestalten. Mit einer Wohnfläche von 113,64 m² auf einem 360 m² großen Grundstück erwarten Sie 3 Zimmer, verteilt auf zwei Etagen, die optimale Raumaufteilung mit 2...

Mehr anzeigen

Ausstattung

Die hochwertige Ausstattung umfasst unter anderem eine effiziente Luft-Wasser-Wärmepumpe, dreifach verglaste Fenster mit Aluminiumrollläden und eine Echtholztreppe. Die bauliche Umsetzung erfolgt in nachhaltiger Holzrahmenbauweise mit moderner, energieeffizienter Wand- und Gebäudetechnik. Das Haus verfügt über eine...

Mehr anzeigen

Weitere Informationen

Sonstiges
allkauf steht für maximale Sicherheit, kurze Lieferzeiten und garantierte Fertigstellung. Mit unseren drei Dienstleistungspaketen für Vielbeschäftigte, Ambitionierte und Heimwerker können Sie die Verantwortung für den Innenausbau flexibel gestalten. Das Dienstleistungspaket Active Time für Ambitionierte, das im...

Mehr anzeigen

Anbieter der Immobilie

Partner

NeWCoM GmbH - Detlef Wölk

Militscher Straße 29, 53881 Euskirchen

user

Herr Malte Hellwig

Dein Ansprechpartner

Anbieter-Website Anbieter-Profil Anbieter-Impressum

Online-ID: 2papw57

Referenznummer: 4264-DO1BPAT260403

Finde Angebote wie dieses

imageimageimage

Hier geht es zu unserem Impressum, den Allgemeinen Geschäftsbedingungen, den Hinweisen zum Datenschutz und nutzungsbasierter Online-Werbung.