
IMMOKAPITAL Trier - Immobilien
065 ···
Nr. anzeigenPreise & Kosten
Verhandlungsbasis
Provision für Käufer
Bitte beachte, das Angebot kann bei Vertragsabschluss die Zahlung einer Provision beinhalten. Weitere Informationen erhältst Du vom Anbieter.
Lage
Das Haus liegt in einer ruhigen Seitenstraße im Ortskern von Kenn, mit hervorragender Infrastruktur und Verkehrsanbindung.
Einkaufsmöglichkeiten, Schulen, Kitas, Ärzte und Freizeitangebote befinden sich in direkter Umgebung.
Trier: ca. 10 Minuten über die A602
Luxemburg (Stadt): ca. 30–40 Minuten über die...
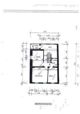
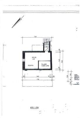
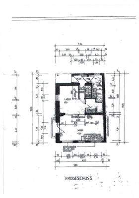
Das Haus
Geschosse
3 Geschosse
Baujahr
1930
Bezug
ab sofort
Derzeitige Nutzung
frei
Energie & Heizung
Warum sehe ich diese Anzeige? – Du siehst diese Anzeige basierend auf Ihrer Navigation auf unserer Website und den Suchkriterien, die du verwendet hast.
Energieausweistyp
Verbrauchsausweis
Gebäudetyp
Wohngebäude
Endenergieverbrauch
133,00 kWh/(m²·a) - Warmwasser enthalten
Weitere Energiedaten
Haustyp
Massivhaus
Energieträger
Öl
Heizungsart
Zentralheizung
Details
Objektbeschreibung
Gepflegtes Zweifamilienhaus mit Garage, Gartenanteil und Innenhof in ruhiger Lage von Kenn:
Zum Verkauf steht ein gepflegtes Zweifamilienhaus mit Garage, 2 Stellplätzen, Innenhof und Gartenanteil in ruhiger, zentraler Lage von Kenn. Das Haus wurde ca. 1930 erbaut und zwischen 2008 und 2010 umfassend renoviert. Es...
Weitere Informationen
Besonderheiten
Gepflegter Zustand, bezugsfrei ab sofort (OG/DG)
EG gewerblich vermietet
Garage + 2 Stellplätze im Innenhof
Gartenanteil zur Eigennutzung
Gute Kapitalanlage oder Mehrgenerationenwohnen möglich
Stichworte
Sonstiges/Wohnen: Einliegerwohnung
Anbieter der Immobilie
Online-ID: 2papj53
Finde Angebote wie dieses
Hier geht es zu unserem Impressum, den Allgemeinen Geschäftsbedingungen, den Hinweisen zum Datenschutz und nutzungsbasierter Online-Werbung.