
RE/MAX PB Immobilien Service GmbH
Herr Philipp Schlenger
004 ···
Nr. anzeigenPreise & Kosten
Provision für Käufer
3,57% Käuferprovision inklusive 19% Mehrwertsteuer
Lage
Das Baugrundstück befindet sich in Paderborn-Wewer, in einem gewachsenen Wohnumfeld mit guter Alltagsversorgung und kurzen Wegen.
Nahversorgung und Alltag
Für den täglichen Einkauf liegen Edeka und Netto in ca. 200 bis 300 m Entfernung. Ein Bäcker ist ebenfalls in ca. 200 m erreichbar. Ein Paketshop befindet sich in...
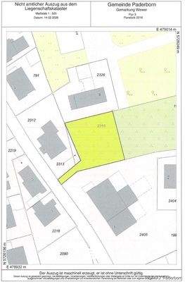
Das Grundstück
Details
Objektbeschreibung
Zum Verkauf steht ein Wohngrundstück mit ca. 580 m² Fläche - eine ideale Grundlage, um Ihr individuelles Bauvorhaben nach eigenen Vorstellungen zu realisieren. Das Grundstück präsentiert sich als überwiegend ebene, gepflegte Grünfläche und bietet viel Raum für die Planung von Haus, Garten und Außenanlagen.
Der...
Ausstattung
- Bebauung nach B-Plan
- GRZ: 0,4
Weitere Informationen
Sonstiges
Es besteht keine Energieausweispflicht!
Stichworte
GRZ: 0,4, Bundesland: Nordrhein-Westfalen
Anbieter der Immobilie
RE/MAX PB Immobilien Service GmbH
Detmolder Straße 204, 33100 Paderborn
Online-ID: 2pame57
Referenznummer: 1092-314-PS
Finde Angebote wie dieses
Hier geht es zu unserem Impressum, den Allgemeinen Geschäftsbedingungen, den Hinweisen zum Datenschutz und nutzungsbasierter Online-Werbung.