
Bettina Dietz Immobilien GbR
004 ···
Nr. anzeigenPreise & Kosten
Provision für Käufer
3,57 % vom Kaufpreis inkl. MwSt. inkl. MwSt.
Lage
Auf dem ehemaligen US-Kasernengelände entsteht derzeit das neue Wohnquartier die "Kaisergärten" für etwa 2.000 Menschen. Die Lage des neuen Baugebietes besticht besonders durch ihre verkehrsgünstige Anbindung über die B26, B469 und die Autobahn A3 binnen weniger Minuten.
In näherer Umgebung sowie direkt im Wohngebiet...
Die Immobilie
Zu diesem Angebot wurden vom Anbieter keine weiteren Daten hinterlegt. Für weitere Informationen bitte den Anbieter kontaktieren.
Nach Informationen fragenDetails
Objektbeschreibung
Ein aufblühendes Wohngebiet ,,Kaisergärten'' in Babenhausen - auf dem Areal der ehemaligen US-Kaserne!
Familienfreundliche Wohnlage umgeben von Kindergarten, Grundschule (2028), Schwimmbad, neuer Rewe-Supermarkt, Cafe-Bäckerei und natürlich familienfreundliche Nachbarn!
Der Bahnhof von Babenhausen ist in ca. 10...
Ausstattung
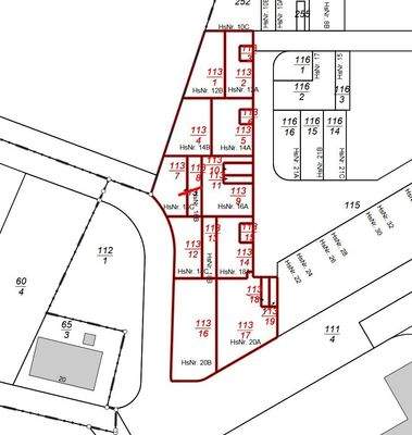
6 Grundstücke Doppelhaushälften
4 Grundstücke Reihenendhäuser
2 Grundstücke Reihenmittelhäuser
Für die Häuser 60-66 liegen Baugenehmigungen vor
Fläche je Reihenhaus/Reiheneckhaus: 135,57 m²
Fläche je Doppelhaushälfte: 135,57 m²
24 PKW-Stellplätze optionale Garage
Weitere Informationen
Stichworte
Distanz zum Kindergarten: 0.30, Distanz zur Grundschule: 0.50, Distanz zur Realschule: 1.80, Distanz zum Gymnasium: 1.50, Distanz zur Autobahn: 8.00, Distanz vom Zentrum: 1.80
Anbieter der Immobilie
Online-ID: 2pamb53
Referenznummer: 9060
Finde Angebote wie dieses
Hier geht es zu unserem Impressum, den Allgemeinen Geschäftsbedingungen, den Hinweisen zum Datenschutz und nutzungsbasierter Online-Werbung.