
Ingenieurbüro Hoene
Frau Monika Hoene
094 ···
Nr. anzeigenPreise & Kosten
Provision für Käufer
1,5 % vom Kaufpreis zzgl. MwSt.
Lage
Der herrlich bewaldete Stadtteil Prüfening liegt im Westen der Stadt Regensburg nahe dem Schloss Prüfening, einem ehemaligen Benediktinerkloster, welches dem Viertel seinen Namen gibt. Insgesamt hat sich der Regensburger Westen zu einem bevorzugten Wohngebiet in Regensburg entwickelt. Dazu haben vor allem die Lage in...
Das Haus
Baujahr
2026
Bezug
2027
Energie & Heizung
Warum sehe ich diese Anzeige? – Du siehst diese Anzeige basierend auf Ihrer Navigation auf unserer Website und den Suchkriterien, die du verwendet hast.
Weitere Energiedaten
Haustyp
KfW 55
Heizungsart
Fußbodenheizung, Luft-/Wasser-Wärmepumpe
Details
Objektbeschreibung
Objektbeschreibung
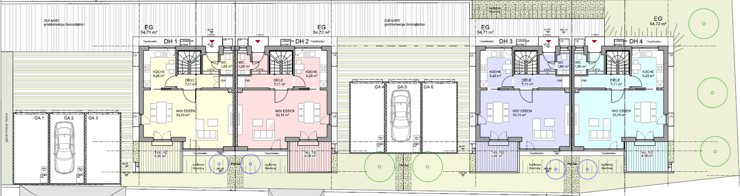
Auf einem Areal von knapp 1.000 qm sind zwei Doppelhäuser mit jeweils identischen Haushälften geplant. Jede Haushälfte verfügt über einen eigenen Grundstücksanteil (Realteilung). Alle Häuser sind in einem modernen Stil und abgestimmt aufeinander in zeitlosen anthrazit und weißen Farbtönen geplant, so...
Weitere Informationen
Besichtigungstermine
Die Beratung und der Verkauf erfolgt über das Ingenieurbüro Hoene. Hier erhalten Sie auch detaillierte und fachgerechte Informationen zur Planung und zum Bau sowie Unterstützung bei der individuellen Gestaltung und Ausstattung.
Termine können flexibel vereinbart werden. Schreiben Sie gerne ein Mail...
Dokumente
Anbieter der Immobilie
Ingenieurbüro Hoene
Luitpoldstraße 11 b, 93047 Regensburg
Online-ID: 2pale54
Finde Angebote wie dieses
Hier geht es zu unserem Impressum, den Allgemeinen Geschäftsbedingungen, den Hinweisen zum Datenschutz und nutzungsbasierter Online-Werbung.