
Crozilla.com
Nas Dom
+38 ···
Nr. anzeigenPreise & Kosten
Provision für Käufer
Bitte beachte, das Angebot kann bei Vertragsabschluss die Zahlung einer Provision beinhalten. Weitere Informationen erhältst Du vom Anbieter.
Die Immobilie
Zu diesem Angebot wurden vom Anbieter keine weiteren Daten hinterlegt. Für weitere Informationen bitte den Anbieter kontaktieren.
Nach Informationen fragenDetails
Objektbeschreibung
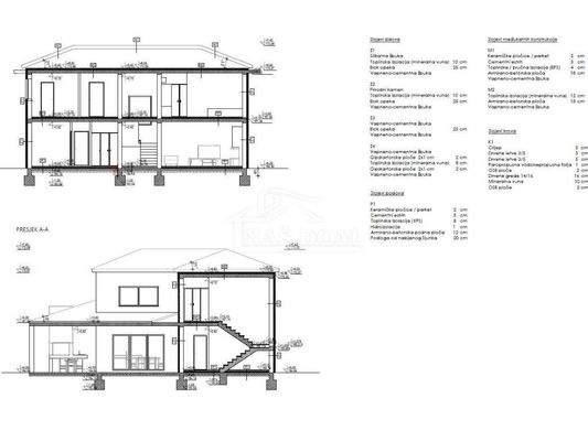
Stankovci, Radasinovci - zu verkaufen ist ein Baugrundstück mit einer Baugenehmigung für den Bau eines Hauses mit Pool. Das Grundstück hat eine Größe von 1001 m2 und die Baugenehmigung wurde für ein zweigeschossiges Haus mit einer Gesamtnettofläche von 164,73 m2 erteilt. Das Haus hat zwei Etagen: das Erdgeschoss hat eine...
Weitere Informationen
Stichworte
Wohnfläche: 1.000,00 m², 1 Etagen
Anbieter der Immobilie
Crozilla.com
Nova cesta 60, 10000 ZAGREB
Online-ID: 2pakw53
Referenznummer: 17908431_17
Finde Angebote wie dieses
Hier geht es zu unserem Impressum, den Allgemeinen Geschäftsbedingungen, den Hinweisen zum Datenschutz und nutzungsbasierter Online-Werbung.