
VON POLL IMMOBILIEN Ansbach - Wittmann Real Estate GmbH
Firma VON POLL IMMOBILIEN Shop Ansbach
004 ···
Nr. anzeigenPreise & Kosten
Provision für Käufer
Käuferprovision beträgt 3,57 % (inkl. MwSt.) des beurkundeten Kaufpreises
Lage
Satteldorf besticht als aufstrebender, ländlicher Wohnstandort, der durch seine stabile Bevölkerungsentwicklung und eine ausgewogene Altersstruktur überzeugt. Die Nähe zur historischen Stadt Schwäbisch Hall eröffnet vielfältige Möglichkeiten in puncto Infrastruktur und Arbeitsplätze, während die ruhige Umgebung mit geringer...
Das Haus
Kategorie
Einfamilienhaus
Baujahr
1971
Energie & Heizung
Warum sehe ich diese Anzeige? – Du siehst diese Anzeige basierend auf Ihrer Navigation auf unserer Website und den Suchkriterien, die du verwendet hast.
Energieausweistyp
Bedarfsausweis
Gebäudetyp
Wohngebäude
Baujahr laut Energieausweis
1971
Wesentliche Energieträger
OEL
Gültigkeit
bis 12.03.2036
Endenergiebedarf
131,80 kWh/(m²·a)
Weitere Energiedaten
Haustyp
Holzhaus
Energieträger
Öl
Heizungsart
offener Kamin, Zentralheizung
Details
Objektbeschreibung
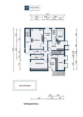
Willkommen in diesem modernisierten Einfamilienhaus, das mit einer Kombination aus Funktionalität und zeitgemäßer Technik überzeugt. Die Immobilie wurde im Jahr 1971 erbaut und präsentiert sich nach umfangreichen Modernisierungen in den vergangenen Jahren in gepflegtem Zustand. Mit sechs Zimmern bietet das Haus flexible...
Ausstattung
Nachfolgend zusammengefasst einige Ausstattungshighlights in der Aufzählung:
- Ca. Grundstücksfläche
- Ca. 160m² Wohnfläche
- 6 Zimmer
- Zwei Bäder
- Durchdachte Aufteilung
- Garage und Carport
- Solarthermie zur Warmwasserbereitung
- Schwedenofen
- Diverse Modernisierungen die...
Preisinformation
1 Carportplatz
1 Garagenstellplatz
Weitere Informationen
Sonstiges
GELDWÄSCHE: Als Immobilienmaklerunternehmen ist die von Poll Immobilien GmbH nach § 2 Abs. 1 Nr. 14 und § 11 Abs. 1, 2 Geldwäschegesetz (GwG) dazu verpflichtet, bei der Begründung einer Geschäftsbeziehung die Identität des Vertragspartners festzustellen und zu überprüfen, bzw. sobald ein ernsthaftes Interesse an...
Anbieter der Immobilie
VON POLL IMMOBILIEN Ansbach - Wittmann Real Estate GmbH
Karlstraße 9, 91522 Ansbach
Online-ID: 2pak753
Referenznummer: 26208833
Finde Angebote wie dieses
Hier geht es zu unserem Impressum, den Allgemeinen Geschäftsbedingungen, den Hinweisen zum Datenschutz und nutzungsbasierter Online-Werbung.