

ICB GmbH Immobilien Consulting Berlin
Herr/Frau Team ICB Berlin
030 ···
Nr. anzeigenPreise & Kosten
Provision für Käufer
3,57% Käufercourtage inkl. MwSt
Lage
Dass Berlin gleich über zwei Stadtzentren verfügt, verdanken wir einer historischen Einmaligkeit. Während sich in den 90'er Jahren die Investitionen stark auf das Zentrum Ost fokussiert hatten, verzeichnet die finanz- und umsatzstarke City-West in den vergangenen Jahren einen neuen Boom in allen Bereichen. Ein...
Die Wohnung
Wohnungslage
4. Geschoss
Bezug
sofort
Derzeitige Nutzung
frei
Wohnanlage
Energie & Heizung
Warum sehe ich diese Anzeige? – Du siehst diese Anzeige basierend auf Ihrer Navigation auf unserer Website und den Suchkriterien, die du verwendet hast.
Energieausweistyp
Bedarfsausweis
Gebäudetyp
Wohngebäude
Gültigkeit
16.05.2020 bis 01.05.2030
Effizienzklasse
C
Endenergiebedarf
99,80 kWh/(m²·a)
Weitere Energiedaten
Energieträger
Fernwärme
Details
Objektbeschreibung
Der Fokus der Baumaßnahmen konzentriert sich auf die technische und energetische Sanierung sowie die Rekonstruktion der Altbausubstanz.
Sofern die Altbausubstanz nicht mehr vorhanden ist, wird dem Gebäude der authentische Charakter durch neue Elemente im historischen Stil zurückgegeben. Besonders die Straßenfassade...
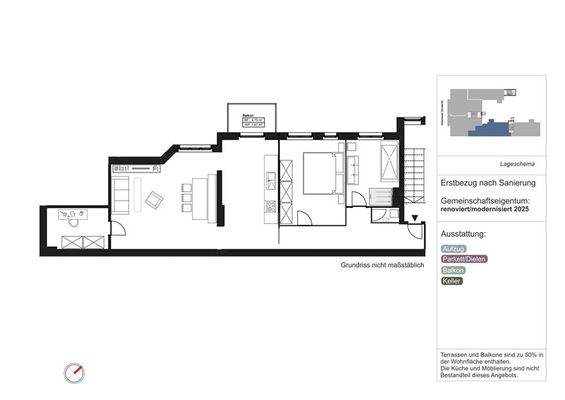
Ausstattung
Die Bestandswohnungen überzeugen durch ihre altbautypische Substanz. Parkett- bzw. Dielenböden, Holzkassettentüren, Altbaufenster mit historischer Aufteilung sind die stilgebenden Merkmale.
Die Vorderhauswohnungen glänzen teilweise mit überaus üppiger Stuckornamentik, alten Kachelöfen, Erkern und großzügiger...
Weitere Informationen
Sonstiges
Die in dieser Präsentation abgebildeten Fotos sind aktuelle Originalaufnahmen aus diesem Objekt bzw. Ansichten vor der Sanierung/Renovierung und Balkonneubau. Das generierte Bildmaterial wurde auf Basis des aktuellen Planungsstands erstellt und dient nur zur unverbindlichen Visualisierung.
Zum Schutz der...
Dokumente
Anbieter der Immobilie
ICB GmbH Immobilien Consulting Berlin
Niebuhrstraße 72, 10629 Berlin

Online-ID: 2paaf57
Referenznummer: Eis20GS
Finde Angebote wie dieses
Hier geht es zu unserem Impressum, den Allgemeinen Geschäftsbedingungen, den Hinweisen zum Datenschutz und nutzungsbasierter Online-Werbung.