
Crozilla.com
Materra Real Estate
+38 ···
Nr. anzeigenPreise & Kosten
Provision für Käufer
Bitte beachte, das Angebot kann bei Vertragsabschluss die Zahlung einer Provision beinhalten. Weitere Informationen erhältst Du vom Anbieter.
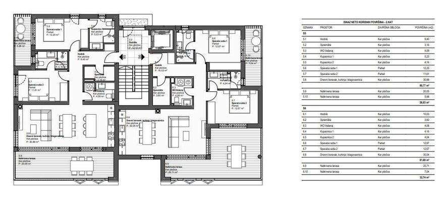
Die Wohnung
Wohnungslage
2. Geschoss
Wohnanlage
Details
Objektbeschreibung
Eine Wohnung steht in Tribunj, einem der begehrtesten Orte an der dalmatinischen Küste, zum Verkauf. Dieses authentische Fischerdorf in der Nähe von Vodice und Sibenik ist bekannt für sein kristallklares Meer, mediterranes Flair, gepflegte Strände und eine ruhige Umgebung - ideal zum Wohnen oder für den Urlaub.
Die...
Weitere Informationen
Stichworte
Anzahl der Schlafzimmer: 2, Anzahl der Badezimmer: 2, 1 Etagen
Anbieter der Immobilie
Crozilla.com
Nova cesta 60, 10000 ZAGREB
Online-ID: 2pa6x54
Referenznummer: 19628995_1
Finde Angebote wie dieses
Hier geht es zu unserem Impressum, den Allgemeinen Geschäftsbedingungen, den Hinweisen zum Datenschutz und nutzungsbasierter Online-Werbung.