

Dous Immobilien GmbH
Frau Pamela Lorenz
004 ···
Nr. anzeigenPreise & Kosten
Provision für Käufer
3,57 % inkl. MwSt.
Lage
Jeetzel, ein idyllischer Ortsteil von Lüchow (Wendland), liegt nur etwa zwei Kilometer südwestlich der historischen Kernstadt Lüchow. Das Dorf wurde um 1800 nach einem Brand nahezu vollständig neu aufgebaut - lediglich die Kapelle blieb erhalten. So fügt sich Jeetzel heute harmonisch in das reizvolle Gesamtbild des Wendlands...
Das Haus
Kategorie
Einfamilienhaus
Baujahr
1823
Energie & Heizung
Warum sehe ich diese Anzeige? – Du siehst diese Anzeige basierend auf Ihrer Navigation auf unserer Website und den Suchkriterien, die du verwendet hast.
Energieausweistyp
Verbrauchsausweis
Gebäudetyp
Wohngebäude
Baujahr laut Energieausweis
1823
Wesentliche Energieträger
GAS
Gültigkeit
bis 18.02.2035
Effizienzklasse
C
Endenergieverbrauch
79,80 kWh/(m²·a)
Weitere Energiedaten
Energieträger
Gas
Heizungsart
offener Kamin, Zentralheizung
Details
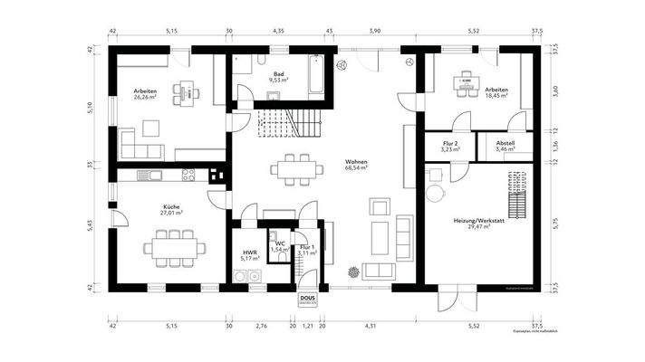
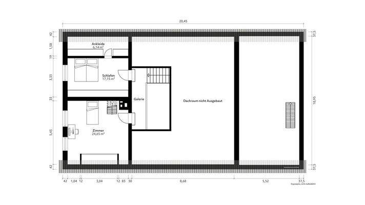
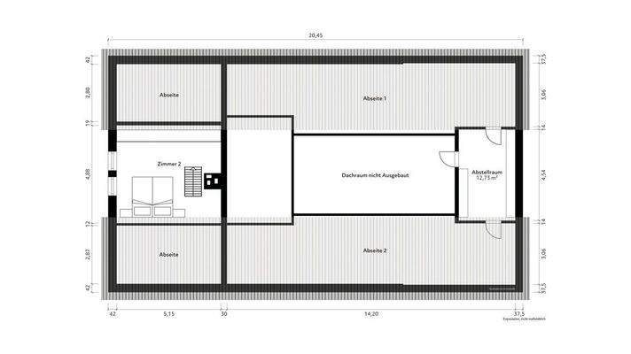
Objektbeschreibung
Ein Haus wie kein anderes: Dieses außergewöhnliche Fachwerkhaus aus dem Jahr 1823 verbindet historischen Charme mit modernem Wohnkomfort und ist im Landkreis Lüchow-Dannenberg ein echtes Unikat. Mitte der 1990er Jahre umfassend unter Achtung der ursprünglichen Gebäudestruktur saniert und 2019 mit neuem Dach und erneuertem...
Preisinformation
2 Garagenstellplätze
Weitere Informationen
Stichworte
Anzahl Terrassen: 1
Anbieter der Immobilie

Online-ID: 2pa3l55
Referenznummer: W-K-LG-25-049-P-3
Finde Angebote wie dieses
Hier geht es zu unserem Impressum, den Allgemeinen Geschäftsbedingungen, den Hinweisen zum Datenschutz und nutzungsbasierter Online-Werbung.