
Novel Real Immobilien GmbH
Frau Ulrike Krempl
+43 ···
Nr. anzeigenPreise & Kosten
Provision für Käufer
3% des Kaufpreises zzgl. 20% USt.
Lage
DORNBACH / KONGRESSPARK
Die Wohnung
Wohnungslage
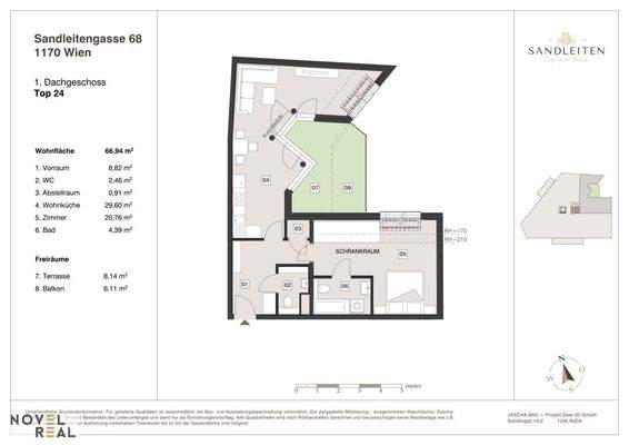
5. Geschoss (Dachgeschoss)
Bezug
1. Quartal 2027
Wohnanlage
Energie & Heizung
Warum sehe ich diese Anzeige? – Du siehst diese Anzeige basierend auf Ihrer Navigation auf unserer Website und den Suchkriterien, die du verwendet hast.
Heizwärmebedarf (HWB)
24,60 kWh/(m²·a)
Gesamtenergieeffizienz (fGEE)
0,72
Weitere Energiedaten
Heizungsart
Fußbodenheizung, Luft-/Wasser-Wärmepumpe
Details
Objektbeschreibung
EXKLUSIVES WOHNEN MIT WEITBLICK UND MEHRWERT
Am Rande von Dornbach, dem exklusiven und charmanten Stadtteil am westlichen Stadtrand von Wien, steht ein einzigartiges Neubauprojekt kurz vor der Fertigstellung. Genießen Sie eine urbane Oase mit perfekter Infrastruktur und Verkehrsanbindung und die Nähe zu den schönsten...
Weitere Informationen
Sonstiges
!:!
Stichworte
Duplex-Stellplatz vorhanden, Tiefgarage vorhanden, Ost-Balkon/Terrasse, Fahrradraum, Rolladen, Anzahl der Badezimmer: 1, Anzahl der separaten WCs: 1, Anzahl Terrassen: 1, Balkon-Terrassen-Fläche: 14,25 m², Bundesland: Wien, 7 Etagen
Sonstiges/Wohnen: seniorengerechtes Wohnen
Anbieter der Immobilie
Novel Real Immobilien GmbH
Dorotheergasse 6-8/8-9, 1010 Wien
Online-ID: 2pa2657
Referenznummer: OBGC202510301159414779068eb3772
Finde Angebote wie dieses
Günstige Immobilienfinanzierung einfach online berechnen
Persönliches Angebot berechnenWarum sehe ich diese Werbung? – Du siehst diese Werbung basierend auf Deiner Navigation auf unserer Website und der von Dir verwendeten Suchkriterien.
Diese Werbung wird bezahlt von durchblicker
Werbung melden
Hier geht es zu unserem Impressum, den Allgemeinen Geschäftsbedingungen, den Hinweisen zum Datenschutz und nutzungsbasierter Online-Werbung.