
ohne-makler.net - Immobilien selbst vermarkten
Privat von Bilgisan Kof
015 ···
Nr. anzeigenPreise & Kosten
Kaution
1.200,00
Provision für Mieter
provisionsfrei
Warum sehe ich diese Anzeige? – Du siehst diese Anzeige basierend auf Ihrer Navigation auf unserer Website und den Suchkriterien, die du verwendet hast.
Lage
Die angebotene Wohnfläche befindet sich in zentraler Lage von Hohenlockstedt. Der Standort zeichnet sich durch eine gute Erreichbarkeit sowie eine gewachsene Infrastruktur aus, wodurch sich attraktive Rahmenbedingungen für unterschiedliche gewerbliche Nutzungskonzepte ergeben.
In unmittelbarer Umgebung befinden sich...
Gastronomie/Hotel
Baujahr
1950
Bezug
01.07.2026
Geschosse
1 Geschoss
Energie & Heizung
Warum sehe ich diese Anzeige? – Du siehst diese Anzeige basierend auf Ihrer Navigation auf unserer Website und den Suchkriterien, die du verwendet hast.
Wärme
Strom
Energieausweistyp
Verbrauchsausweis
Gebäudetyp
Nicht-Wohngebäude
Endenergieverbrauch (Wärme)
452,00 kWh/(m²·a)
Endenergieverbrauch (Strom)
115,00 kWh/(m²·a)
Weitere Energiedaten
Energieträger
Gas
Heizungsart
Zentralheizung
Details
Objektbeschreibung
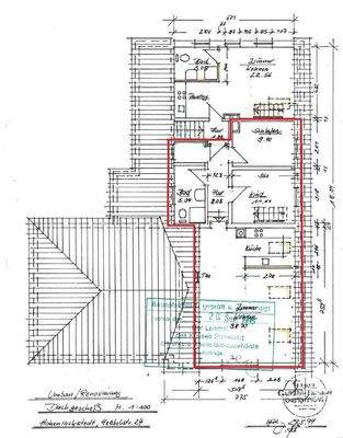
In Hohenlockstedt wird eine großzügige Wohneinheit im 1. Obergeschoss eines gemischt genutzten Gebäudes zur Vermietung angeboten. Die im beigefügten Grundriss rot gekennzeichneten Flächen definieren den Umfang der angebotenen Wohnung.
Die Einheit umfasst insgesamt ca. 79,69 m² Wohnfläche und besteht aus vier Zimmern...
Ausstattung
Einbauküche
Bemerkungen:
Die Wohnfläche befindet sich in einem gepflegten Zustand.
Preisinformation
1 Carportplatz
Nettokaltmiete: 400,00 EUR
Weitere Informationen
Sonstiges
Heizungsart: Zentralheizung
Energieträger: Gas
Makleranfragen nicht erwünscht. Nach § 7 UWG sind unaufgeforderte Kontaktaufnahmen durch Makler ohne ausdrückliche Einwilligung des Empfängers verboten!
ohne-makler (OM) ist weder Anbieter noch Vermittler der Immobilie. OM betreibt eine Plattform...
Anbieter der Immobilie
ohne-makler.net - Immobilien selbst vermarkten
Humboldtstr. 25 A, 21509 Glinde
Online-ID: 2p9x455
Referenznummer: 434059
Finde Angebote wie dieses
Hier geht es zu unserem Impressum, den Allgemeinen Geschäftsbedingungen, den Hinweisen zum Datenschutz und nutzungsbasierter Online-Werbung.