
Salli's Immobiliengesellschaft mbH
Herr Boran Salli
040 ···
Nr. anzeigenPreise & Kosten
Provision für Käufer
provisionsfrei
Lage
Das Grundstück befindet sich im Büchener Weg in Lauenburg/Elbe, in einer zentralen und gewachsenen Wohnlage.
Einkaufsmöglichkeiten, Schulen, Kindergärten sowie Einrichtungen des täglichen Bedarfs sind gut erreichbar. Die Umgebung zeichnet sich durch eine angenehme Wohnstruktur aus und eignet sich ideal für...
Die Immobilie
Zu diesem Angebot wurden vom Anbieter keine weiteren Daten hinterlegt. Für weitere Informationen bitte den Anbieter kontaktieren.
Nach Informationen fragenDetails
Objektbeschreibung
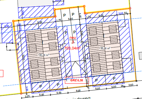
Zum Verkauf steht ein Grundstücksanteil für eine Doppelhaushälfte in zentraler Wohnlage von Lauenburg/Elbe (Büchener Weg).
Das Gesamtgrundstück umfasst ca. 704 m² und verfügt über einen positiven Bauvorbescheid zur Errichtung von zwei Doppelhäusern mit insgesamt vier Wohneinheiten.
Der angebotene Anteil...
Weitere Informationen
Sonstiges
- Grundstücksanteil: ca. 175 m²
- Gesamtgrundstück: ca. 704 m²
- Positiver Bauvorbescheid vorhanden
- Geplante Bebauung: zwei Doppelhäuser (4 Wohneinheiten)
- Ca. 100 m² Wohnfläche pro Einheit möglich
- Eingeschossig mit Satteldach
- Kellerbau möglich
Gerne stellen wir Ihnen bei Interesse...
Anbieter der Immobilie
Salli's Immobiliengesellschaft mbH
Neuer Wall 8, 20354 Hamburg-Mitte
Online-ID: 2p9up56
Finde Angebote wie dieses
Hier geht es zu unserem Impressum, den Allgemeinen Geschäftsbedingungen, den Hinweisen zum Datenschutz und nutzungsbasierter Online-Werbung.