
ohne-makler.net - Immobilien selbst vermarkten
Privat vom Eigentümer
Kontaktiere den Anbieter schriftlich, es ist keine Telefonnummer hinterlegt.
Preise & Kosten
Provision für Käufer
provisionsfrei
Lage
Eberstadt, ein südlicher Stadtteil Darmstadts mit rund 25.000 Einwohnern, überzeugt durch eine hohe Lebensqualität. Vielfältige soziale Einrichtungen, Vereine, Sport- und Freizeitangebote - darunter ein großes Freibad - sowie zahlreiche Naherholungsmöglichkeiten in der umliegenden Landschaft machen den Stadtteil besonders...
Das Haus
Kategorie
Mehrfamilienhaus
Baujahr
1962
Bezug
sofort
Derzeitige Nutzung
vermietet
Energie & Heizung
Warum sehe ich diese Anzeige? – Du siehst diese Anzeige basierend auf Ihrer Navigation auf unserer Website und den Suchkriterien, die du verwendet hast.
Energieausweistyp
Bedarfsausweis
Gebäudetyp
Wohngebäude
Effizienzklasse
H
Endenergiebedarf
327,00 kWh/(m²·a)
Weitere Energiedaten
Energieträger
Öl
Heizungsart
Zentralheizung
Details
Objektbeschreibung
Das Mehrfamilienhaus in Top-Lage in Darmstadt-Eberstadt umfasst drei Wohneinheiten:
- Erdgeschoß: 107 m², 3 Zimmer, Küche, Bad, WC, Terrasse und Garten
- Obergeschoß: 102 m², 3 Zimmer, Küche, Bad, WC, Balkon
- Dachgeschoß: 66 m², 3 Zimmer, Küche, Bad (derzeit nicht vermietet)
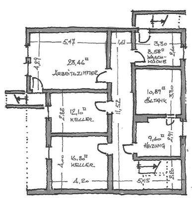
Das Gebäude ist voll unterkellert...
Ausstattung
Balkon, Terrasse, Garten
Preisinformation
2 Garagenstellplätze
Weitere Informationen
Sonstiges
Heizungsart: Zentralheizung
Energieträger: Öl
Das Dach wurde im Sommer 2025 grundsaniert, inklusive Aufsparrendämmung, Dachrinnen, UK PV-Anlage und Dachfenstern.
Weitere Infos finden Sie auf unserer Web-Seite: edw6.jimdosite.com
Makleranfragen nicht erwünscht. Nach § 7 UWG sind...
Anbieter der Immobilie
ohne-makler.net - Immobilien selbst vermarkten
Humboldtstr. 25 A, 21509 Glinde
Privat vom Eigentümer
Dein Ansprechpartner
Kontaktiere den Anbieter schriftlich, es ist keine Telefonnummer hinterlegt.
Online-ID: 2p9t253
Referenznummer: 424977
Finde Angebote wie dieses
Hier geht es zu unserem Impressum, den Allgemeinen Geschäftsbedingungen, den Hinweisen zum Datenschutz und nutzungsbasierter Online-Werbung.