
Crozilla.com
DIAMOND Real Estate
+38 ···
Nr. anzeigenPreise & Kosten
Provision für Käufer
Bitte beachte, das Angebot kann bei Vertragsabschluss die Zahlung einer Provision beinhalten. Weitere Informationen erhältst Du vom Anbieter.
Die Wohnung
Wohnungslage
1. Geschoss
Details
Objektbeschreibung
ISTRIEN, POREC, WOHNUNG IN BELIEBTER LAGE, NAEHE ZENTRUM
In einer der begehrtesten Gegenden von Porec, in exzellenter und praktischer Lage nahe aller wichtigen Annehmlichkeiten, steht eine Wohnung zum Verkauf, die Komfort und Funktionalität ideal vereint.
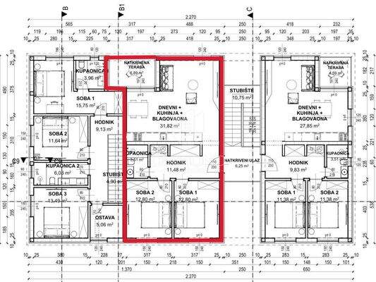
Die Wohnung verfügt über eine Wohnfläche von 77,5 m² und...
Weitere Informationen
Stichworte
Anzahl der Schlafzimmer: 2, Anzahl der Badezimmer: 1, 1 Etagen
Anbieter der Immobilie
Crozilla.com
Nova cesta 60, 10000 ZAGREB
Online-ID: 2p9h257
Referenznummer: 19387145_2
Finde Angebote wie dieses
Hier geht es zu unserem Impressum, den Allgemeinen Geschäftsbedingungen, den Hinweisen zum Datenschutz und nutzungsbasierter Online-Werbung.