
Heibeck-Immobilien
Bernd Heibeck
017 ···
Nr. anzeigenPreise & Kosten
Provision für Käufer
2,99%
Die Käuferprovision beträgt 2,99% (inkl. MwSt.) vom Kaufpreis.
Lage
Willkommen in der charmanten Gemeinde Borkheide, einem beschaulichen Ort mit einer idyllischen Lage im Landkreis Potsdam-Mittelmark, Brandenburg. Diese bezaubernde Region besticht durch ihre Nähe zur Natur und die gleichzeitig gute Anbindung an die urbanen Zentren.
Borkheide liegt nur etwa 60 Kilometer südwestlich von...
Das Haus
Kategorie
Einfamilienhaus
Baujahr
1982
Bezug
nach Absprache
Energie & Heizung
Warum sehe ich diese Anzeige? – Du siehst diese Anzeige basierend auf Ihrer Navigation auf unserer Website und den Suchkriterien, die du verwendet hast.
Energieausweistyp
Bedarfsausweis
Gebäudetyp
Wohngebäude
Wesentliche Energieträger
Holzpellets
Gültigkeit
28.01.2026 bis 27.01.2036
Effizienzklasse
D
Endenergiebedarf
115,85 kWh/(m²·a)
Weitere Energiedaten
Energieträger
Pellets
Heizungsart
Fußbodenheizung, offener Kamin
Details
Objektbeschreibung
Verkauf modernes und energieeffizientes Ein- bis Zweifamilienhaus in idyllischer Lage
Es handelt sich um ein geschmackvoll ausgestattetes Ein- bis Zweifamilienhaus mit Fahrradschuppen, Doppelgarage und Doppelcarport auf einem ca. 4.006 m² großen Gartengrundstück.
Das Wohnhaus wurde ca. 1982 in grundsolider...
Ausstattung
- sehr ruhige und idyllische Wohnlage
- grundsolide Massivbauweise, Baujahr ca. 1982
- im Jahr 2014 kernsaniert
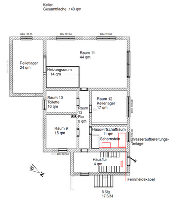
- Im Souterrain volle Wohnfläche (2,40m hoch)
- Fassade mit Vollwärmeschutz
- Einfahrt und Wege gepflastert
- Fenster mit 3-fach Verglasung
- teilweise bodentiefe Fenster
- elektrische...
Preisinformation
4 Stellplätze
Weitere Informationen
Sonstiges
In dem Haus kann ein ruhiges Gewerbe wie z.B. eine kleine Werkstatt, Nagelstudio, Kosmetikstudio oder eine Physiotherapie betrieben werden.
Stichworte
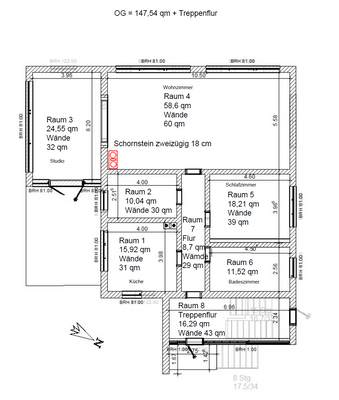
Anzahl der Badezimmer: 2, Anzahl Balkone: 1, Balkon-Terrassen-Fläche: 40,00 m², 2 Etagen, modernisiert: 2015
Anbieter der Immobilie
Heibeck-Immobilien
Emsstr. 9, 14612 Falkensee
Online-ID: 2p96w53
Referenznummer: 1155
Finde Angebote wie dieses
Hier geht es zu unserem Impressum, den Allgemeinen Geschäftsbedingungen, den Hinweisen zum Datenschutz und nutzungsbasierter Online-Werbung.