

Georg Knaup - Ihr Immopartner
Herr Georg Knaup
052 ···
Nr. anzeigenPreise & Kosten
Provision für Käufer
provisionsfrei
Lage
Diese Neubau-Doppelhaushälften befinden sich in Bad Lippspringe / Schlangen, Zum Kurwald / Ecke Paderborner Straße einer ruhigen und familienfreundlichen Wohnlage.
Schlangen hat rund 9.500 Einwohner und liegt am Rande des Teutoburger Waldes, einer Region mit hohem Wohn- und Erholungswert. In unmittelbarer Umgebung...
Das Haus
Kategorie
Doppelhaushälfte
Baujahr
2025
Energie & Heizung
Warum sehe ich diese Anzeige? – Du siehst diese Anzeige basierend auf Ihrer Navigation auf unserer Website und den Suchkriterien, die du verwendet hast.
Weitere Energiedaten
Heizungsart
Luft-/Wasser-Wärmepumpe, Zentralheizung
Details
Objektbeschreibung
Nutzen Sie die Einführung der neuen befristeten Förderstufe Effizienzhaus 55 , der
staatlichen Förderbank KFW, um Ihr Haus zu finanzieren.
Dieses Programm hat die Programmnummer KfW 297 und bietet Ihnen Förderkredite
über 100.000,- EUR zu sehr günstigen Konditionen.
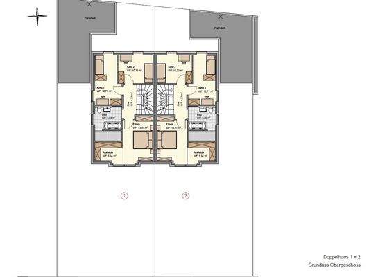
Diese vier Neubau-Doppelhaushälften bieten...
Ausstattung
- Luftwärmepumpen- Heizung unterstützt durch Photovoltaikanlage auf dem Dach
- Fußbodenheizung in allen Räumen
- Loggia im Dachgeschoss
- elektrische Rollläden
- Auswahl hochwertiger Fliesen in den Bädern und im Technikraum
- großzügige Grundrisse
- durchdachte Raumaufteilung - ideal...
Weitere Informationen
Sonstiges
Preisaufstellung:
Haus 1:
Grundstück: 281m²
Wohnfläche: 160,21
Preis: 519.900,- EUR fertig ausgebaut
Haus 2:
Grundstück: 271m²
Wohnfläche: 160,15
Preis: 517.900,- EUR fertig ausgebaut
Haus 3:
Grundstück 274m²
Wohnfläche: 160,15
Preis: 518.900,- EUR fertig...
Dokumente
Anbieter der Immobilie
Georg Knaup - Ihr Immopartner
Detmolder Str. 71, 33100 Paderborn

Online-ID: 2p95n52
Referenznummer: 5430_ZK_1
Finde Angebote wie dieses
Hier geht es zu unserem Impressum, den Allgemeinen Geschäftsbedingungen, den Hinweisen zum Datenschutz und nutzungsbasierter Online-Werbung.