
Immokanal24
Herr E. Daniel Kanal
073 ···
Nr. anzeigenPreise & Kosten
Provision für Käufer
3,57 % inkl. 19 % MwSt.
Lage
Die Immobilie befindet sich in Heidenheim (Landkreis Weißenburg-Gunzenhausen) im Fränkischen Seenland mit Hahnenkammsee und vielen wunderschönen Wanderwegen. Die Umgebung zeichnet sich durch eine naturnahe Wohnlage mit hohem Freizeitwert aus. Im Ort sind wichtige Einrichtungen des täglichen Bedarfs vorhanden, darunter...
Das Haus
Kategorie
Einfamilienhaus
Baujahr
1977
Bezug
sofort
Energie & Heizung
Warum sehe ich diese Anzeige? – Du siehst diese Anzeige basierend auf Ihrer Navigation auf unserer Website und den Suchkriterien, die du verwendet hast.
Energieausweistyp
Bedarfsausweis
Gebäudetyp
Wohngebäude
Baujahr laut Energieausweis
1977
Wesentliche Energieträger
Heizöl
Gültigkeit
09.03.2026 bis 08.03.2036
Effizienzklasse
G
Endenergiebedarf
245,90 kWh/(m²·a)
Weitere Energiedaten
Energieträger
Öl
Heizungsart
Zentralheizung
Details
Objektbeschreibung
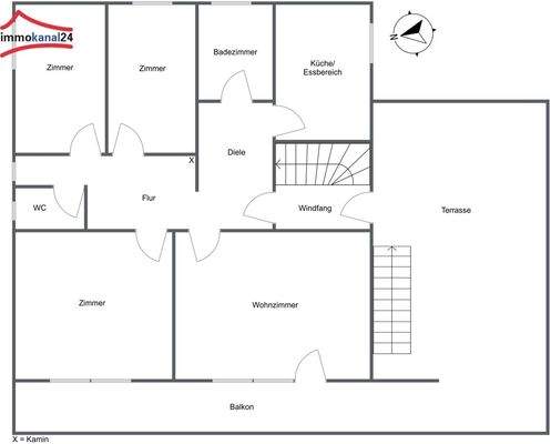
Das angebotene Zweifamilienhaus mit Garten befindet sich auf einem ca. 718 m² großen Grundstück und bietet eine Gesamtwohnfläche von rund 182 m². Beide Wohneinheiten sind über ein gemeinsames Treppenhaus separat erschlossen und verfügen über eine nahezu identische Raumaufteilung, wodurch sich das Objekt ideal für...
Ausstattung
- sehr neuwertiges Dach/Ziegeln + Isolierung
- Fassade gestrichen 2018
- 2x Westbalkon
- 1x Süd-Terrasse
- Garagenstellplätze 2
- Außenstellplätze 1
- Maschinenhalle für Kfz, Wohnmobil etc. ca. 3 Plätze
- Werkstatt
- Kunststofffenster 3-fach 2018
- Dachfenster Velux 2018
- Einbauküche modern
-...
Weitere Informationen
Sonstiges
Bitte beachten: Anfragen ohne gültiger E-Mail-Adresse und Telefonnummer können nicht bearbeitet werden.
Alle Angaben ohne Gewähr. Die Inhalte dieses Exposés stammen vom Anbieter. Grundrisse sind nicht maßstabsgetreu. Für Daten Dritter übernehmen wir keine Haftung. Das Angebot ist nur für Sie bestimmt und...
Anbieter der Immobilie
Online-ID: 2p8xh56
Referenznummer: 1775
Finde Angebote wie dieses
Hier geht es zu unserem Impressum, den Allgemeinen Geschäftsbedingungen, den Hinweisen zum Datenschutz und nutzungsbasierter Online-Werbung.