
Immobilien Friedrichsen GmbH & Co. KG
004 ···
Nr. anzeigenPreise & Kosten
Provision für Käufer
3,57 % inkl. MwSt.
Lage
Die Gemeinde Stadum liegt umhüllt vom Langenberger Forst auf halber Strecke zwischen Nord- und Ostsee.
Das Dorf lockt insbesondere durch seine vielen Freizeitmöglichkeiten, so sind beispielsweise unzählige Reit-, Wander- und Fahrradwege vorhanden.
Je nach Lust und Laune können Sie dabei das flache Umland oder den...
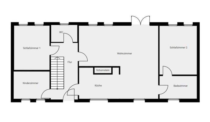
Das Haus
Kategorie
Doppelhaushälfte
Baujahr
1983
Bezug
nach Vereinbarung
Energie & Heizung
Warum sehe ich diese Anzeige? – Du siehst diese Anzeige basierend auf Ihrer Navigation auf unserer Website und den Suchkriterien, die du verwendet hast.
Energieausweistyp
Verbrauchsausweis
Gebäudetyp
Wohngebäude
Baujahr laut Energieausweis
1983
Wesentliche Energieträger
OEL
Gültigkeit
bis 12.06.2036
Effizienzklasse
G
Endenergieverbrauch
213,70 kWh/(m²·a)
Weitere Energiedaten
Haustyp
Massivhaus
Energieträger
Öl
Heizungsart
Fußbodenheizung
Details
Objektbeschreibung
Diese zentral gelegene Doppelhaushälfte in massiver Bauweise aus ca. 1983 bietet viel Platz für eine Familie, Mehrgenerationenwohnen oder alle, die Wohnen und Arbeiten unter einem Dach vereinen möchten. Das Haus überzeugt durch seine großzügige Raumaufteilung mit insgesamt 8 Zimmern, darunter 6 Schlafzimmer, sowie durch ein...
Ausstattung
- heller Wohnbereich mit direktem Zugang zum Garten
- Fußbodenheizung im EG und teilweise im DG
- Anschlüsse für Duschbad und Küche im DG vorhanden
- Außenrollläden vorhanden
- Doppelgarage auch als Werkstatt gut geeignet - beheizt
Weitere Informationen
Sonstiges
Wir helfen Ihnen gerne bei der Finanzierung der Immobilie!
Unser Service / Ihre Vorteile:
-Erstellung eines individuellen Finanzierungskonzeptes
-Finanzierungsvorprüfung "Was kann ich mir leisten?"
-Einbindung und Prüfung von Fördermöglichkeiten
- Auswahl einer passenden und günstigen...
Anbieter der Immobilie

Immobilien Friedrichsen GmbH & Co. KG
Online-ID: 2p8x553
Referenznummer: 9498
Finde Angebote wie dieses
Hier geht es zu unserem Impressum, den Allgemeinen Geschäftsbedingungen, den Hinweisen zum Datenschutz und nutzungsbasierter Online-Werbung.