
S Immobilienpartner GmbH
Herr Andreas Fink
004 ···
Nr. anzeigenPreise & Kosten
Provision für Käufer
3,57 % inkl. MwSt.
Lage
Die Immobilie befindet sich in einer ruhigen und familienfreundlichen Wohngegend im Kölner Stadtteil Seeberg. Die Umgebung besticht durch eine gelungene Mischung aus Einfamilienhäusern, modernen Wohnanlagen und grünen Freiflächen, die ein entspanntes Wohnambiente bieten.
Die Lage überzeugt durch eine hervorragende...
Das Haus
Kategorie
Bungalow
Baujahr
1966
Energie & Heizung
Warum sehe ich diese Anzeige? – Du siehst diese Anzeige basierend auf Ihrer Navigation auf unserer Website und den Suchkriterien, die du verwendet hast.
Energieausweistyp
Verbrauchsausweis
Gebäudetyp
Wohngebäude
Baujahr laut Energieausweis
1966
Wesentliche Energieträger
FERN
Gültigkeit
bis 08.12.2035
Effizienzklasse
E
Endenergieverbrauch
131,70 kWh/(m²·a)
Weitere Energiedaten
Energieträger
Fernwärme
Details
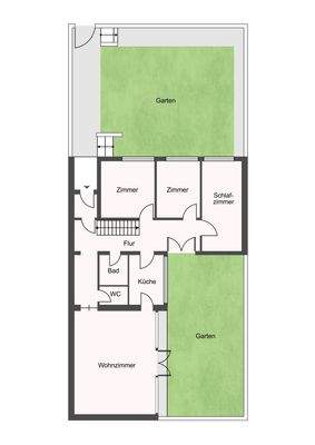
Objektbeschreibung
Der 1966 erbaute Atriumbungalow befindet sich in einem guten, gepflegten Zustand. Das Eckgrundstück hat eine Größe von ca. 370 m² mit einer Einzelgarage in der Nähe.
Die Wohnfläche beträgt ca. 102 m². Auf der Wohnebene befindet sich das Wohnzimmer, die Küche, drei Schlafzimmer, Gäste WC und das Wannenbad. Im...
Weitere Informationen
Stichworte
Garage vorhanden, Nutzfläche: 66,00 m², Anzahl Terrassen: 1
Anbieter der Immobilie
Online-ID: 2p8v554
Referenznummer: 90967
Finde Angebote wie dieses
Hier geht es zu unserem Impressum, den Allgemeinen Geschäftsbedingungen, den Hinweisen zum Datenschutz und nutzungsbasierter Online-Werbung.