
Clavis Immobilien OHG
Herr/Frau Harald Keil
089 ···
Nr. anzeigenPreise & Kosten
Kaution
9000
Provision für Mieter
provisionsfrei
Warum sehe ich diese Anzeige? – Du siehst diese Anzeige basierend auf Ihrer Navigation auf unserer Website und den Suchkriterien, die du verwendet hast.
Lage
Der Stadtbezirk Schwabing-Freimann liegt im Münchner Norden. Im Süden wird er vom Siegestor begrenzt, im Norden durch die Stadtgrenze Münchens, im Osten durch die Isar, im Westen größtenteils durch die Leopoldstraße und die Ingolstädter Straße.
Der Stadtbezirk ist sowohl durch Wohn- als auch Gewerbebebauung geprägt und...
Büro-/Praxisfläche
Kategorie
Bürofläche
Bezug
sofort
Geschoss
1. Geschoss
Energie & Heizung
Warum sehe ich diese Anzeige? – Du siehst diese Anzeige basierend auf Ihrer Navigation auf unserer Website und den Suchkriterien, die du verwendet hast.
Weitere Energiedaten
Energieträger
Gas
Details
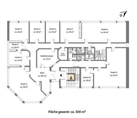
Objektbeschreibung
Im ersten Obergeschoss des firmeneigenen Gebäudes bietet der renommierte Münchner Internet-Full-Service-Provider und IT-Dienstleister SpaceNet AG zentral und ruhig gelegene Büroflächen in unmittelbarer Nähe des Frankfurter Rings an.
Das Angebot umfasst einen zentralen Bereich mit Konferenzraum, von dem aus zehn...
Ausstattung
- sehr gute Anbindung an Hauptverkehrsstraßen und Autobahnen
- gute Anbindung an den öffentlichen Verkehr – Bus und U-Bahn
- Kfz-Stellplätze in der Tiefgarage
- Besucherparkplätze vor dem Haus
- Empfangsbereich mit permanenter Besetzung
- Lift im Haus
- eigene Etage
- zentraler Konferenzraum
-...
Weitere Informationen
Sonstiges
Info: Anzahl Etagen: 4
Trotz sorgfältiger Prüfung können wir keine Haftung für die Richtigkeit und die Vollständigkeit der Objektdaten übernehmen. Diese basieren auf uns erteilten Angaben sowie eigenen Recherchen. Die Grundrissdarstellungen sind nicht maßstabsgerecht.
Es gelten unsere Allgemeinen...
Dokumente
Anbieter der Immobilie
Clavis Immobilien OHG
Rathausplatz 1, 85579 Neubiberg

Online-ID: 2p8rr54
Referenznummer: VMG2026_SNOG1_IW01
Finde Angebote wie dieses
Hier geht es zu unserem Impressum, den Allgemeinen Geschäftsbedingungen, den Hinweisen zum Datenschutz und nutzungsbasierter Online-Werbung.