VS Immobilien

Herrn Waldemar Schneider

Bauplatz mit Baugenehmigung für 4 exklusive Doppelhaushälften in Baden-Baden – 590 m

€ 380.000
Kaufpreis
590 m²
Grundstücksfl. ca.

Der Anbieter dieses Objekts hat gegenüber der AVIV Germany GmbH als Betreiber dieses Online-Marktplatzes erklärt, nicht als Unternehmer im Sinne des § 1 KSchG zu handeln. Die im Verbraucherschutzrecht der Union verankerten Verbraucherrechte (insbesondere Informationspflichten und Rücktritts- bzw. Widerrufsrechte) finden auf den Vertrag zwischen dem Anbieter des Objekts und Ihnen (dem Interessenten) keine Anwendung.

Gewerblicher Anbieter

Der Anbieter dieses Objekts hat gegenüber der AVIV Germany GmbH als Betreiber dieses Online-Marktplatzes erklärt, als Unternehmer im Sinne des § 1 KSchG zu handeln.

AdresseStraße nicht freigegeben
76532 Baden-Baden 
(Weststadt)
Auf Karte ansehen

Preise & Kosten

Kaufpreis € 380.000

Provision für Käufer

3,57 Inkl. Mwst.

Lage

Lage:
Die zentrale Weststadtlage bietet kurze Wege zu Einkaufsmöglichkeiten, Schulen, Kindergärten und öffentlichen Verkehrsmitteln. Gleichzeitig genießen Sie die Ruhe und das grüne Umfeld dieser beliebten Wohngegend.

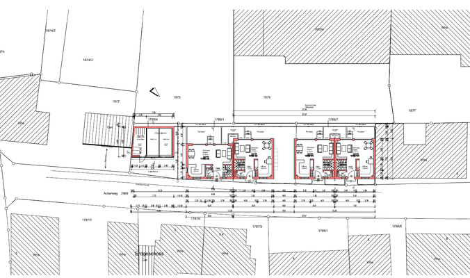
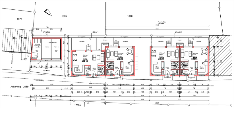
Das Grundstück

  • bebaubar nach §34 Nachbarbebauung, Baugenehmigung vorhanden
  • voll erschlossen

Energie & Heizung

info

Energieausweis: für diesen Gebäudetyp nicht notwendig

Details

Objektbeschreibung

Objektbeschreibung:
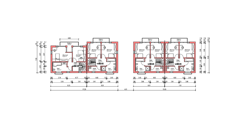
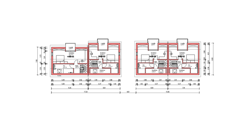
Entdecken Sie diese einmalige Gelegenheit in der begehrten Weststadt von Baden-Baden: Ein 590 m² großes Grundstück mit bereits erteilter Baugenehmigung für vier moderne Doppelhaushälften. Jede Einheit bietet ca. 150 m² Wohnfläche, ist voll unterkellert und überzeugt durch durchdachtes Design sowie...

Mehr anzeigen

Weitere Informationen

Sonstiges
Voll erschlossenes Baugrundstück
Baugenehmigung bereits vorhanden – sofort mit Bau beginnen
Ideale Investition für Eigennutzer oder Kapitalanleger

Anbieter der Immobilie

Partner

VS Immobilien

im Durchschnitt  5,00  Sterne
(bei 1 Bewertungen)

Blütenfeldplatz 2, 76532 Baden-Baden

user

Herrn Waldemar Schneider

Dein Ansprechpartner

Anbieter-Website Anbieter-Profil Anbieter-Impressum

Online-ID: 2p8rq53

Referenznummer: 0248

Finde Angebote wie dieses

imageimageimage

Hier geht es zu unserem Impressum, den Allgemeinen Geschäftsbedingungen, den Hinweisen zum Datenschutz und nutzungsbasierter Online-Werbung.