

HBI - Bergmann Immobilien
Frau Heike Bergmann
033 ···
Nr. anzeigenPreise & Kosten
Provision für Käufer
3,57% inkl. MwSt.
Käufer und Verkäufer zahlen jeweils eine Maklerprovision in Höhe von 3,57% inkl. der gesetzlichen Mehrwertsteuer an die Firma Bergmann Immobilien. Die Provision errechnet sich aus dem Exposépreis und ist fällig am Tag der Beurkundung
Lage
Heiligensee in seiner aktuellen Form befindet sich im Nordwesten des Bezirks Reinickendorf. Das ursprüngliche Dorf liegt auf einer Halbinsel zwischen der Havel und dem namensgebenden Heiligensee. Im Lauf der Entwicklung dehnte sich der Ortsteil längs der Havel weiter nach Süden bis zum Ortsteil Konradshöhe aus.
Die...
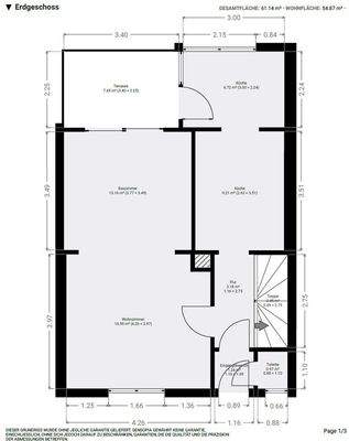
Das Haus
Kategorie
Doppelhaushälfte
Baujahr
1936
Bezug
Nach Vereinbarung
Energie & Heizung
Warum sehe ich diese Anzeige? – Du siehst diese Anzeige basierend auf Ihrer Navigation auf unserer Website und den Suchkriterien, die du verwendet hast.
Energieausweistyp
Bedarfsausweis
Gebäudetyp
Wohngebäude
Gültigkeit
bis 09.09.2035
Effizienzklasse
G
Endenergiebedarf
200,40 kWh/(m²·a)
Details
Objektbeschreibung
Die hier angebotene Doppelhaushälfte befindet sich in einer ruhigen und familienfreundlichen Lage von Berlin-Heiligensee. Das im Jahr 1936 errichtete Haus wurde in Massivbauweise mit Putzbaufassade erbaut und verfügt über eine Wohnfläche von ca. 82 m², verteilt auf zwei Etagen mit insgesamt drei Zimmern. Das Grundstück...
Ausstattung
Doppelhaushälfte inkl. Vollkeller
Baujahr ca. 1938
Massivbauweise
Putzaußenfassade
Dacheindeckung
Material: Dachziegel
Holztreppe ins OG und KG
Kunststofffenster inkl. Rollläden
Heizungsart: Ölheizung
Hersteller: Weisshaupt
Öl-Tankanlage ca.: 2.000...
Weitere Informationen
Erschließung
Öffentliches Wasser, öffentliches Abwasser, Strom sind angeschlossen und bezahlt laut Aussage des
Eigentümers.
DSL ist verfügbar laut Aussage des Internetproviders.
Bebaubarkeit
Einbauküche
Garage
Gartenhaus
Treppenlift Eingangsbereich
Treppenlift...
Anbieter der Immobilie
HBI - Bergmann Immobilien
Chausseestr. 7, 16515 Oranienburg

Online-ID: 2p8nj56
Referenznummer: 1012-2025
Finde Angebote wie dieses
Hier geht es zu unserem Impressum, den Allgemeinen Geschäftsbedingungen, den Hinweisen zum Datenschutz und nutzungsbasierter Online-Werbung.