

ImmoUnion24 GmbH
Herr Wolfgang Straub
091 ···
Nr. anzeigenPreise & Kosten
Verhandlungsbasis
Provision für Käufer
4,79% vom Kaufpreis (inkl. MwSt.)
Lage
Die angebotene Immobilie befindet sich in 90518 Altdorf bei Nürnberg, einer charmanten Kleinstadt im Landkreis Nürnberger Land, Bayern, etwa 25 km südöstlich von Nürnberg inmitten einer landschaftlich reizvollen Region mit sanften Hügeln, Wald- und Wiesengebieten.
Die Wohnlage zeichnet sich...
Das Haus
Kategorie
Einfamilienhaus
Geschosse
2 Geschosse
Baujahr
2005
Bezug
01.05.2026
Derzeitige Nutzung
frei
Energie & Heizung
Warum sehe ich diese Anzeige? – Du siehst diese Anzeige basierend auf Ihrer Navigation auf unserer Website und den Suchkriterien, die du verwendet hast.
Energieausweistyp
Verbrauchsausweis
Gebäudetyp
Wohngebäude
Wesentliche Energieträger
GAS
Effizienzklasse
C
Endenergieverbrauch
88,58 kWh/(m²·a) - Warmwasser enthalten
Weitere Energiedaten
Energieträger
Gas
Heizungsart
Ofen, Zentralheizung
Details
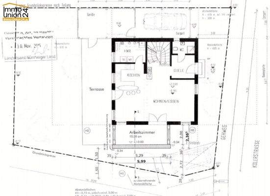
Objektbeschreibung
Dieses charmante Einfamilienhaus vereint modernes Wohnen mit mediterranem Flair in einer ruhigen und sehr gefragten Wohnlage von Altdorf bei Nürnberg.
Mit 136 m² Wohnfläche auf einem 323 m² Grundstück bietet es eine familienfreundliche Raumaufteilung mit insgesamt 5 Zimmern, die ein...
Ausstattung
- ruhige, begehrte Wohnlage in Altdorf bei Nürnberg
- Wohnfläche: 136 m² auf 323 m² Grundstück
- 5 familienfreundliche Zimmer
- modernes Wohnen mit mediterranem Flair
- pflegeleicht angelegter Garten
- wettergeschützte Terrasse mit Sonnenschutz
- Außengrill
- Baumhaus mit...
Preisinformation
1 Carportplatz, Kaufpreis: 13.000,00 EUR
1 Stellplatz
Weitere Informationen
Sonstiges
Die ImmoUnion24 GmbH erhält vom Käufer bei Abschluss eines durch die ImmoUnion24 GmbH vermittelten und notariell beurkundeten Kaufvertrages zu dieser Immobilie 4,76 % inkl. MwSt. Käuferprovision. Die Käuferprovision wird berechnet aus dem Gesamterwerbspreis und ist verdient am Tag der notariellen Beurkundung des...
Anbieter der Immobilie
ImmoUnion24 GmbH
Eckentaler Straße 12, 90542 Eckental

Online-ID: 2p8n953
Referenznummer: 1157
Finde Angebote wie dieses
Hier geht es zu unserem Impressum, den Allgemeinen Geschäftsbedingungen, den Hinweisen zum Datenschutz und nutzungsbasierter Online-Werbung.