

Robert Littmann Immobilien GmbH
Herr Sebastian Leske
017 ···
Nr. anzeigenPreise & Kosten
Provision für Käufer
3,57 % inkl. MwSt
Lage
Die Immobilie befindet sich in ruhiger und gewachsener Wohnlage im Achimer Ortsteil Baden, einer der gefragtesten Wohngegenden im direkten Umland von Bremen. Die Umgebung ist geprägt von gepflegter Einfamilienhausbebauung, großzügigen Grundstücken und einem insgesamt angenehmen, nachbarschaftlichen Wohnumfeld.
Trotz...
Das Haus
Kategorie
Einfamilienhaus
Baujahr
1970
Bezug
Nach Absprache
Energie & Heizung
Warum sehe ich diese Anzeige? – Du siehst diese Anzeige basierend auf Ihrer Navigation auf unserer Website und den Suchkriterien, die du verwendet hast.
Weitere Energiedaten
Energieträger
Öl
Heizungsart
Fußbodenheizung
Details
Objektbeschreibung
Dieses freistehende Einfamilienhaus ist kein klassischer Altbau, sondern ein durchdacht modernisiertes Zuhause. Ursprünglich 1936 errichtet und 1970 erweitert, wurde die Immobilie ab 2023 konsequent und umfassend auf einen zeitgemäßen Stand gebracht. Das Ergebnis: ein Haus, das die Stabilität eines gewachsenen Bestands mit...
Ausstattung
Das Objekt verfügt über:
- Baujahr 1936 - Erweiterung 1970
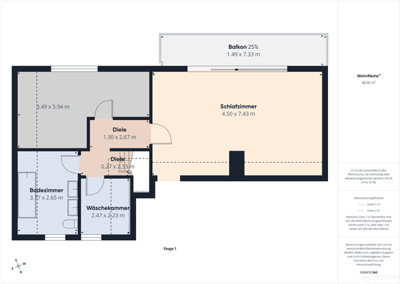
- Wohnfläche: 140,29 m²
- Grundstücksgröße: 964 m²
- Einbauküche
- 4 Zimmer
- Badezimmer Erdgeschoss mit bodentiefer Dusche & Fenster (2026)
- Badezimmer Dachgeschoss mit Badewanne & Fenster (2023)
- zweifachverglaste Holz- und...
Preisinformation
2 Garagenstellplätze
Weitere Informationen
Sonstiges
Die Objektbeschreibung basiert auf den Angaben des Eigentümers bzw. dessen Auskunftsbefugten. Für die Richtigkeit und Vollständigkeit der Daten übernimmt die Firma Robert Littmann Immobilien keine Gewährleistung oder Haftung.
Alle aufkommenden Kosten für den Kaufvertrag und dessen Durchführung trägt der...
Anbieter der Immobilie

Online-ID: 2p8m258
Referenznummer: 5220643
Finde Angebote wie dieses
Hier geht es zu unserem Impressum, den Allgemeinen Geschäftsbedingungen, den Hinweisen zum Datenschutz und nutzungsbasierter Online-Werbung.