

Gründer Immobilien
Herr Ralf Gründer
049 ···
Nr. anzeigenPreise & Kosten
Provision für Käufer
provisionsfrei
Lage
Walchum ist eine kleine Gemeinde im Nordwesten Niedersachsens, nahe der niederländischen Grenze. Sie gehört zur Samtgemeinde Dörpen im Landkreis Emsland und liegt zwischen der Ems im Osten und den Moor- und Waldgebieten im Westen. Die landschaftlich reizvolle Umgebung mit Flussauen, Wäldern und dem Seepark Eiken macht den Ort...
Das Haus
Kategorie
Einfamilienhaus
Baujahr
2025
Bezug
Nach Vereinbarung
Energie & Heizung
Warum sehe ich diese Anzeige? – Du siehst diese Anzeige basierend auf Ihrer Navigation auf unserer Website und den Suchkriterien, die du verwendet hast.
Weitere Energiedaten
Energieträger
Gas
Heizungsart
Fußbodenheizung
Details
Objektbeschreibung
Provisionsfrei für Käufer: Dieses attraktive Einfamilienhaus entsteht 2025 (kurz vor Fertigstellung) als moderner Neubau in massiver Bauweise und bietet Ihnen die Möglichkeit des Erstbezugs. Auf ca. 90?m² Wohnfläche erwartet Sie ein durchdachtes Raumkonzept, das sowohl für Familien als auch für Paare oder Einzelpersonen...
Ausstattung
Dieses Einfamilienhaus überzeugt durch eine hochwertige, moderne Ausstattung, die Komfort und Qualität vereint.
Das Gebäude wird in massiver Bauweise errichtet und mit einem stilvollen schwarzen Satteldach versehen, das dem Haus eine elegante und zeitgemäße Optik verleiht. Alle Fenster bestehen aus pflegeleichtem...
Preisinformation
2 Stellplätze
Weitere Informationen
Sonstiges
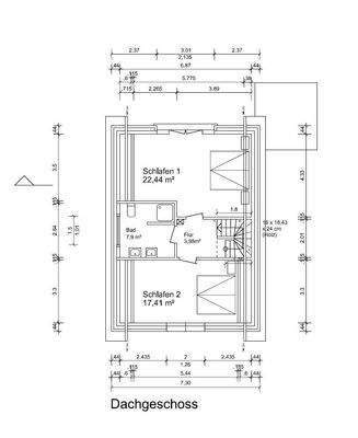
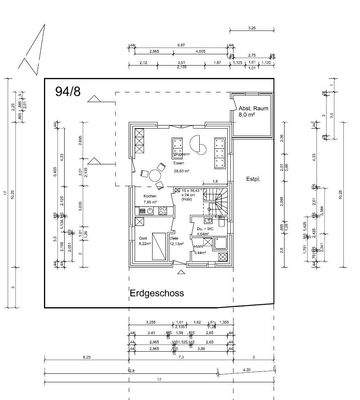
Wohnflächenaufteilung:
Erdgeschoss:
Diele ca. 9,00 m²
Wohn & Esszimmer/Küche ca. 26,00 m²
Duschbad ca. 3,00 m²
Schlafen I ca. 9,00 m²
Hauswirtschaftsraum ca. 4,00 m²
Dachgeschoss:
Flur ca. 5,00 m²
Duschbad ca. 5,00 m²
Schlafen I ca. 16,00 m²
Schlafen II ca. 13,00...
Anbieter der Immobilie
Gründer Immobilien
Haupstraße 97, 26892 Dörpen

Online-ID: 2p8gh55
Referenznummer: 8418
Finde Angebote wie dieses
Hier geht es zu unserem Impressum, den Allgemeinen Geschäftsbedingungen, den Hinweisen zum Datenschutz und nutzungsbasierter Online-Werbung.