
Thomas Popp Immobilienverwaltung Hof der Alten Sternwarte
Herr/Frau Thomas Popp
034 ···
Nr. anzeigenPreise & Kosten
Kaution
4.185 EUR
Warum sehe ich diese Anzeige? – Du siehst diese Anzeige basierend auf Ihrer Navigation auf unserer Website und den Suchkriterien, die du verwendet hast.
Das Haus
Kategorie
Doppelhaushälfte
Baujahr
2019
Bezug
01.06.2026
Energie & Heizung
Warum sehe ich diese Anzeige? – Du siehst diese Anzeige basierend auf Ihrer Navigation auf unserer Website und den Suchkriterien, die du verwendet hast.
Energieausweistyp
Bedarfsausweis
Gebäudetyp
Wohngebäude
Baujahr laut Energieausweis
2019
Wesentliche Energieträger
Strom
Gültigkeit
11.03.2019 bis 11.03.2029
Effizienzklasse
A+
Endenergiebedarf
18,70 kWh/(m²·a)
Weitere Energiedaten
Haustyp
KfW 55
Energieträger
Elektro
Heizungsart
Fußbodenheizung, Luft-/Wasser-Wärmepumpe
Details
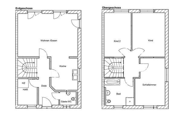
Objektbeschreibung
Exklusives Neubauobjekt in Trajuhn - Doppelhaushälfte zu vermieten!
Große 4-Raum-Wohnung mit Gartenfläche
EG: Geräumiges Wohn- und Esszimmer mit offener amerikanischer Küche, Gäste-WC mit Fenster und Hauswirtschaftsraum
OG: Drei große Schlafzimmer und geräumiges Tageslichtbad mit Dusche und Wanne.
Zwei...
Anbieter der Immobilie
Thomas Popp Immobilienverwaltung Hof der Alten Sternwarte
Bürgermeisterstraße 16 , 06886 Lutherstadt Wittenberg
Online-ID: 2p8fc55
Finde Angebote wie dieses
Hier geht es zu unserem Impressum, den Allgemeinen Geschäftsbedingungen, den Hinweisen zum Datenschutz und nutzungsbasierter Online-Werbung.