
ohne-makler.net - Immobilien selbst vermarkten
Privat von Bianca Schwaar
Kontaktiere den Anbieter schriftlich, es ist keine Telefonnummer hinterlegt.
Preise & Kosten
nicht in Warmmiete enthalten
Kaution
1.800,00
Warum sehe ich diese Anzeige? – Du siehst diese Anzeige basierend auf Ihrer Navigation auf unserer Website und den Suchkriterien, die du verwendet hast.
Lage
Das Wohn- und Geschäftshaus wurde erst im Jahr 2020 erbaut.
Es befindet sich in zentraler Lage und dennoch im Grünen und am Wasser, nicht unweit von der Köpenicker Altstadt entfernt. Mehrere Buslinien sowie S- und Tram-Linien befinden sind in der nahen Umgebung. Fußläufig sich zudem Einkaufsmöglichkeiten und Ärzte...
Die Wohnung
Wohnungslage
3. Geschoss
Bezug
01.05.2026
Wohnanlage
Energie & Heizung
Warum sehe ich diese Anzeige? – Du siehst diese Anzeige basierend auf Ihrer Navigation auf unserer Website und den Suchkriterien, die du verwendet hast.
Energieausweistyp
Bedarfsausweis
Gebäudetyp
Wohngebäude
Effizienzklasse
B
Endenergiebedarf
64,00 kWh/(m²·a)
Weitere Energiedaten
Energieträger
Fernwärme
Heizungsart
Fußbodenheizung
Details
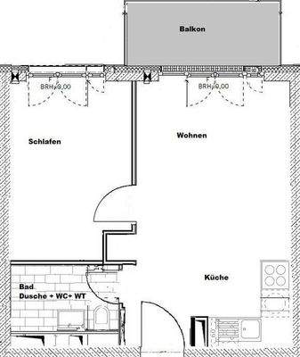
Objektbeschreibung
Diese attraktive, neuwertige Wohnung im dritten Obergeschoss zeichnet sich durch eine gehobene Innenausstattung aus und kann ab sofort bezogen werden. Der geräumige Wohn-Küchenbereich mit Balkon bildet das Herzstück der Wohnung. Hier können Sie entspannen, kochen und den schönen Blick vom Balkon auf die Spree genießen...
Ausstattung
Balkon, Fahrstuhl, Duschbad, Fliesen
Preisinformation
Nettokaltmiete: 600,00 EUR
Weitere Informationen
Sonstiges
Heizungsart: Fußbodenheizung
Energieträger: Fernwärme
Makleranfragen nicht erwünscht. Nach § 7 UWG sind unaufgeforderte Kontaktaufnahmen durch Makler ohne ausdrückliche Einwilligung des Empfängers verboten!
ohne-makler (OM) ist weder Anbieter noch Vermittler der Immobilie. OM betreibt eine...
Anbieter der Immobilie
ohne-makler.net - Immobilien selbst vermarkten
Humboldtstr. 25 A, 21509 Glinde
Privat von Bianca Schwaar
Dein Ansprechpartner
Kontaktiere den Anbieter schriftlich, es ist keine Telefonnummer hinterlegt.
Online-ID: 2p8dg54
Referenznummer: 441339
Finde Angebote wie dieses
Hier geht es zu unserem Impressum, den Allgemeinen Geschäftsbedingungen, den Hinweisen zum Datenschutz und nutzungsbasierter Online-Werbung.